Monipuolinen liiketila Hornhattula Porvoo
Hornhattulassa monipuolinen toimitila vuokrattavana!
Liiketilana useiden vuosien ajan toiminut toimitila vuokrattavana Hornhattulan teollisuusalueella.
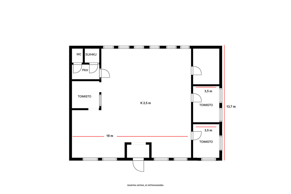
Monipuolinen tila pinta-alaltaan noin 295 m², joka sopii hyvin esim. toimistoksi, näyttelytilaksi tai liiketilaksi. Liiketila on pääosin avotilaa ja siellä on kolme toimistohuonetta ja isot näyteikkunat päätielle päin. Tilassa on WC, suihku, siivouskomero ja pukuhuone. Valoisa hyvä tila, jossa ikkunoita moneen suuntaan. Sisätilan korkeus noin 2,5 metriä.
Mahdollisuus asentaa nosto-ovi erikseen sovitusti. Runsaasti kylmää lisävarastotilaa on mahdollisesti vuokrattavana huoneiston vierestä. Kysy tästä lisää.
Iso asfaltoitu piha-alue, jossa mahtuu isommallakin yhdistelmällä kääntymään. Nopea liikenneyhteys Porvoon keskustaan ja Porvoon moottoritielle. Auraus kiinteistöllä kuuluu vuokraan.
Näkyvällä liikepaikalla hyvä tila moneen käyttöön!
Kohdetiedot
Sijainti
Katuosoite: Simolinintie 2, 06100 Porvoo
Kaupunginosa: Hornhattula
Ympäristö: Teollisuusaluetta
Rakennus/huoneisto
Pinta-ala: 295 m²
Huoneistoselitelmä: Liiketila/toimitila, 3 toimistohuonetta, sosiaalitilat
Kunto, varusteet ja palvelut: Peruskuntoiset tilat
Lämmitys: Sähkölämmitys
Pysäköinti: Pihalla rakennuksen edessä
Vapautuminen: Heti vapaa
Vuokrahinta ja kulut
Kuukausivuokra: 4,9 €/m²/kk + alv
Sähkömaksu: Vuokralainen tekee oman sähkösopimuksen
Vesimaksu: Kulutuksen mukaan
Lämmitys: Vuokralaisen lukuun
Muut kulut: Vuokralainen vastaa jätehuollostaan
Muut ehdot: Minimisopimuskausi 12 kk, vakuus 3 kk:n vuokraa vastaava summa, luottotietojen oltava kunnossa
Ominaisuudet
-
Asfaltoitu piha
-
Parkkipaikat
-
Suihku
-
Toimistotila
-
Vesipiste
-
WC
Tutustu myös näihin kohteisiin
Ota yhteyttä

KTM, LKV Antti Soivio
- 0400 446553
- [javascript protected email address]