Unelmien rakennuspaikka Gumbostrand Sipoo
Myydään omakotitalotontti Gumbostrandin kylässä Sipoossa!
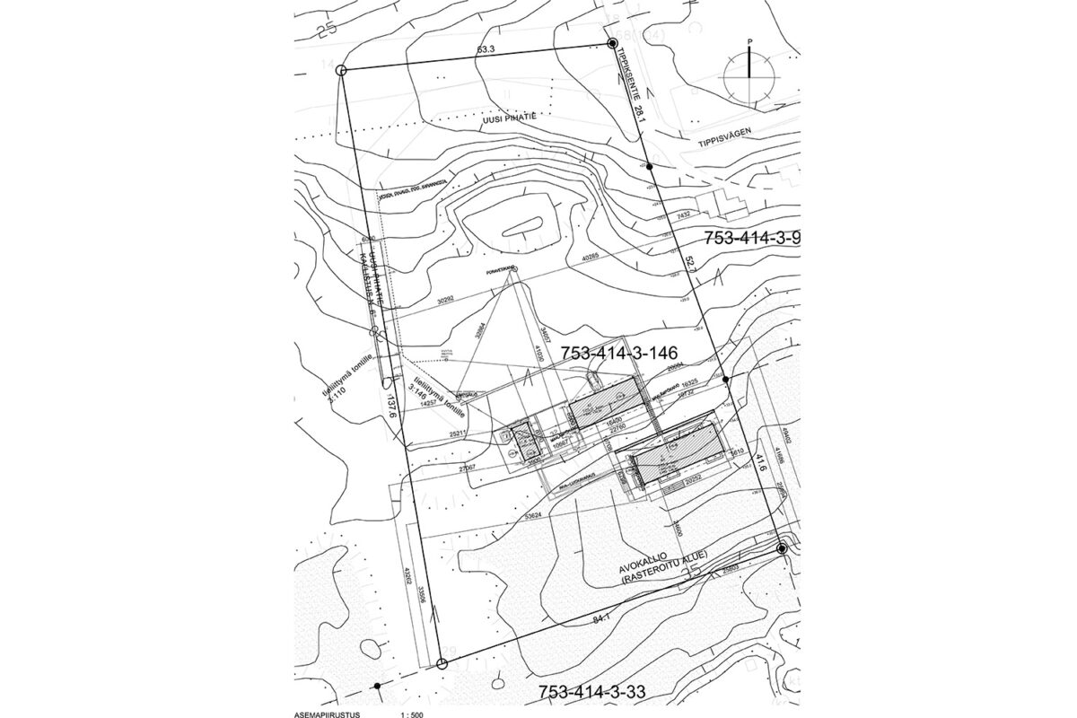
Idyllisessä Sipoon Gumbostrandin kylässä on myynnissä 9501-neliöinen rakennuspaikka/kiinteistö. Gumbostrandin kyläalue on osayleiskaava aluetta. Kiinteistölle on jo valmiina haettuna rakennuslupa. Pääasiallisesti kiinteistö on metsää, jota on harvennettu ja hakattu valmiiksi sekä porattu tartuntaraudat päärakennuksen nurkkiin.
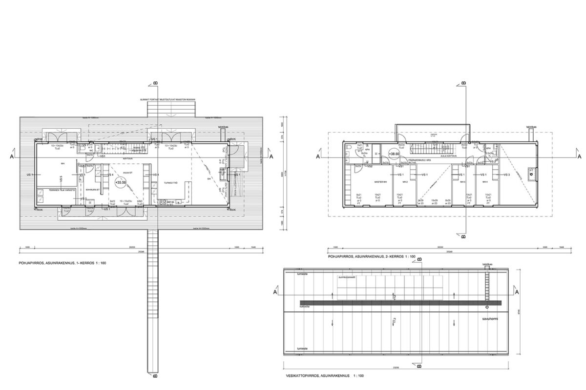
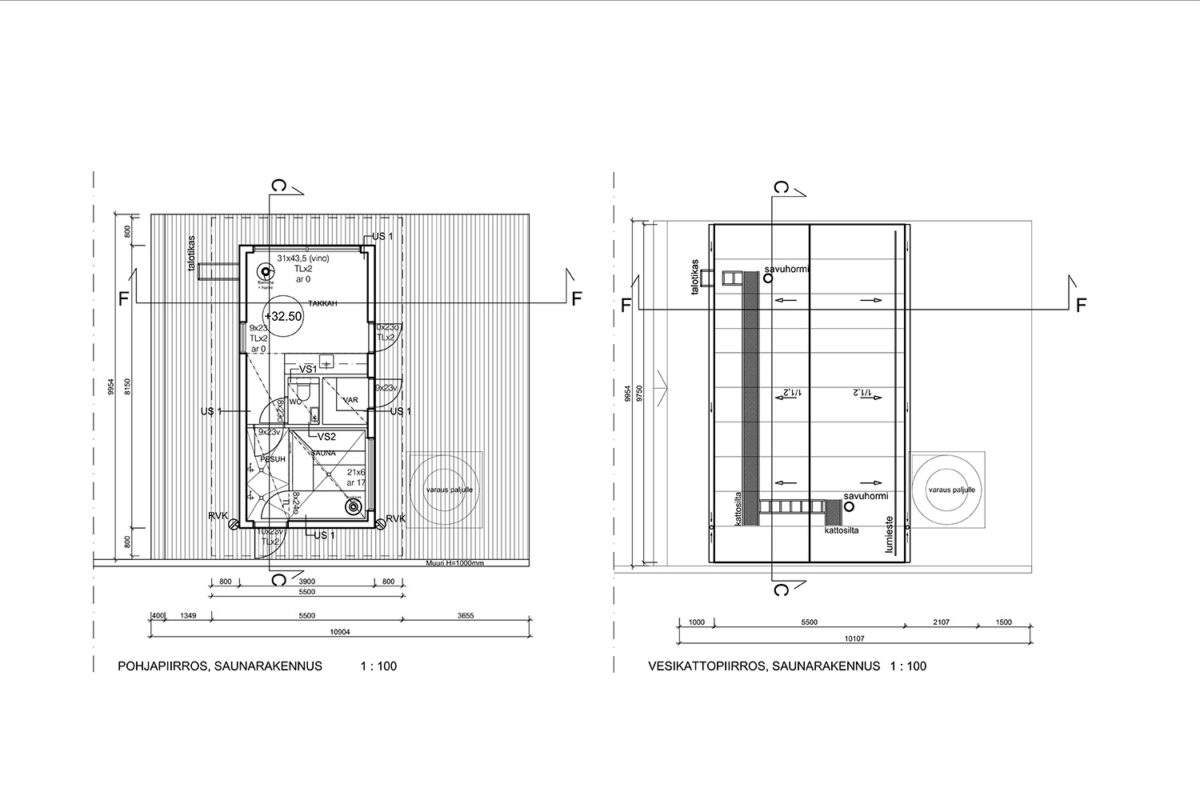
Rakennusoikeutta on (nykyinen lupa) yhteensä 384 m² ja kaavan mukaan tontille saa rakentaa asuinrakennuksen, joka on 300 Kem yhteen kerrokseen tai 400 Kem kahteen (tai useampaan kerrokseen). Huoneistoalana edellä mainitut luvut vastaavat 206,8 m². Lisäksi tontille saa kerrosalalaskelman mukaan rakentaa 100 Kem talousrakennuksen, 30 Kem saunarakennuksen, Savusaunan (15 Kem) sekä sivuasunnon (100 Kem). Ilmoituksen kuvissa valmiit rakennuspiirustukset asuinrakennukselle (206,8 m²), autotallille (96,9 m²) sekä saunarakennukselle (27,1 m²).
Kuvissa tonttikuvia ja nykyisen luvan havainnekuvia.
Mikäli rakennuspaikalle haetaan uutta lupaa, saa yhteenlaskettu kokonaiskerrosala olla enintään 10 % rakennuspaikan pinta-alasta, vähintään kuitenkin 250 k-m². Rakennuspaikalle saa rakentaa enintään yhden yksiasuntoisen yksikerroksisen asuinrakennuksen, jonka kerrosala on enintään 300 k-m² tai useampaan kuin yhteen tasoon rakennettavan yksiasuntoisen asuinrakennuksen, jonka kerrosala on enintään 400 k-m².
Myynnissä olevaan kiinteistöön kohdistuu tierasite. Naapuritontilla käyttöoikeus kiinteistön rajan mukaisesti kulkevalla pihatiellä. Kunnallistekniikka kulkee lähellä, kiinteistön eteläisimmällä laidalla, Vainuddintien tuntumassa. Kiinteistön rakennuskuviin on tarvittaessa piirretty myös porakaivot, umpisäiliöt ja imeytyskentät.
Gumbostrandin merellisessä kylässä sijaitsee vuonna 2012 Hartwallin entiseen patenttikorkkitehtaaseen avattu taide- ja näyttelykeskus Gumbostrand Konst & Form. Lisäksi kylässä on kolmiopettajainen ruotsinkielinen alakoulu, jonka yhteydessä toimii liikunta- ja kokouskeskus Gumbotalo. Gumbotalosta on mahdollista vuokrata tiloja ympäri vuoden eri käyttötarkoitusta varten, esimerkiksi urheilemiseen tai kokousten- ja juhlien järjestämiseen. Merenrantaan lähimmälle pienvenesatamalle linnuntietä on matkaa noin 400 metriä ja tietä pitkin noin 900 metriä. Lisäksi tontti sijaitsee muinaisen Lemmikäisen temppelin välittömässä läheisyydessä. Muinainen temppeli on Bockin perheen saagassa kuvattu maanalainen temppeli, jonka suuaukko sijaitsee saagan mukaan Sipoon Gumbostrandissa Ior Bockin Kyypelivuoreksi kutsuman kallion alla.
Söderkullan kattavat kaupanpalvelut noin 10 kilometrin päässä. Lisäksi Nevas Golfin rata ja Nevaksen Ratsastuskeskus noin 20 minuutin ajomatkan päässä. Bussipysäkki Gumbostrandin tieliittymän lähettyvillä ja Helsinkiin/Porvooseen pääsee hujauksessa myös julkisilla!
Unelmien omakotitalotontti merellisessä Gumbostrandin kylässä!
Kohdetiedot
Sijainti
Katuosoite: Tippiksentie 34, 01150 Sipoo
Kaupunginosa: Sipoo, Gumbostrand
Ympäristö: Asuinaluetta ja merellinen maaseutu
Tontti
Kiinteistötunnus: 753-414-3-146
Pinta-ala: 9501 m²
Rakennusoikeus: 384 m²
Kaava: Osayleiskaava (AP)
Myyntihinta
Velaton myyntihinta: 315’000 €
Tutustu myös näihin kohteisiin
Ota yhteyttä

KTM, LKV Antti Soivio
- 0400 446553
- [javascript protected email address]






























