
Toimitilaa Muijala Lohja
1’100 €/m² | 280–1’668 m² + piha-alue 504 m² | Sauvonrinne 19, Lohja

Kohdetta välittää
KTM, LKV Antti Soivio
- 0400 446553
- [javascript protected email address]

Hyvää ja monipuolista toimitilaa sijoittajalle tai omaan käyttöön!
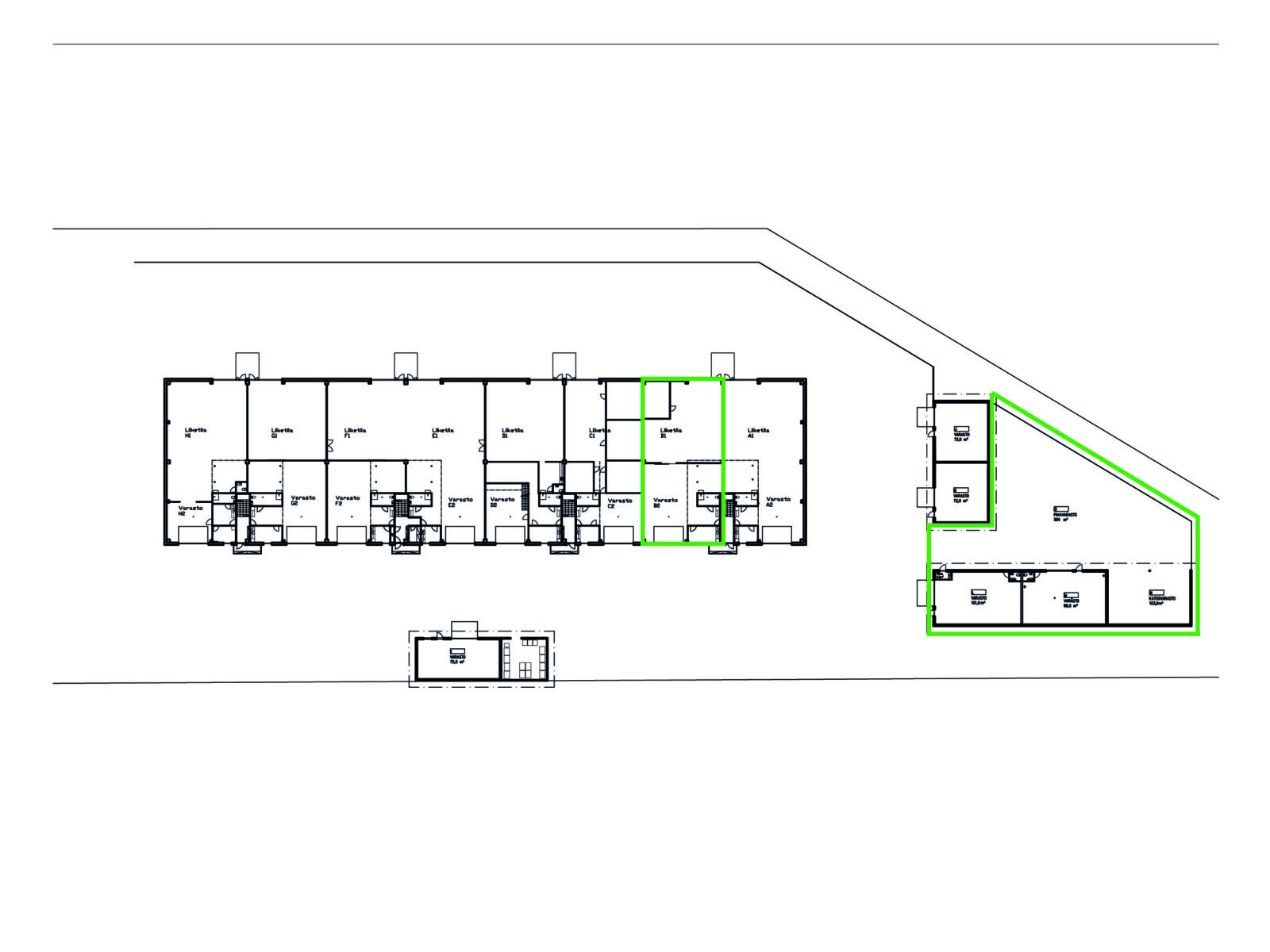
Lohjalla Muijalan teollisuus- ja toimitila-alueella on myynnissä monikäyttöistä ja siistiä toimitilaa sijoituskohteeksi tai miksei omaankin käyttöön. Myytävät tilat on merkitty pohjakuviin punaisella värillä. Lisäksi myynnissä on aidattu piha-alue, joka näkyy pohjakuvassa sinisellä katkoviivalla rajattuna.
Päärakennuksen ensimmäisessä kerroksessa on toimi- ja varastotiloja, toisessa kerroksessa toimistohuoneita. Kaikissa tiloissa on oma, pieni keittiö, wc ja suihku. Ensimmäisen kerroksen tilat ovat kooltaan noin 280 m² (H1 ja H2 on tällä hetkellä jaettu kahteen erilliseen tilaan), toisen kerroksen tilat (pääosin toimistotiloja) noin 50–60 m². Päärakennuksen varastotiloissa on nosto-ovi (K4.3*L4.5).
Sivurakennuksen tilat ovat noin 100-neliöisiä. Myös sivurakennuksen molemmissa varastotiloissa on oma wc.
Kaikki tilat voidaan myydä joko yhdessä tai erikseen. HUOM! Tilat B1, B2, B3, varastot L ja M, kylmä katos N sekä aidattu piha-alue O myydään kuitenkin kaikki yhdessä. Nämä alueet on rajattu asemapiirrokseen vihreällä viivalla.
Kaikissa myytävissä tiloissa on pitkäaikaiset, hyvät vuokralaiset. Neliövuokrien keskiarvo on noin 9,50 €/m²/kk. Vastikekeskiarvo on noin 3,50–4,00 €/m²/kk.
Rakennukset sijaitsevat hyvällä paikalla aivan Lohjan keskustaan vievän Lohjanharjuntien kupeessa, moottoritielle E18 on lyhyt matka ja Kehä III:lle ajat 15 minuutissa.
Laadukkaat ja monipuoliset tilat - hyvien liikenneyhteyksien päässä!
Kohdetiedot
Sijainti
Katuosoite: Sauvonrinne 19, 08500 Lohja
Kaupunginosa: Muijala
Ympäristö: Teollisuus- ja toimitila-alue
Rakennus/huoneisto
Pinta-alat: 280–1’668 m² + piha-alue 504 m²
Huoneistoselitelmä: Toimitilaa, toimistohuoneita, varastotilaa, keittiö, wc, suihku, kylmä katos
Kunto, varusteet ja palvelut: Hyvässä kunnossa olevat tilat
Pysäköinti: Pihassa
Vapautuminen: myydään vuokrattuna/sopimusten mukaan
Myyntihinta ja kulut
Velaton myyntihinta: 1’100 €/m²
Vuokratulot: Noin 9,50 €/m²/kk
Hoitovastike: Noin 3,50–4,00 €/m²/kk



Kohteen ominaisuudet
-
Aidattu alue
-
Asfaltoitu piha
-
Ilmastointi
-
Keittiö
-
Lattiakaivo
-
Nosto-ovi
-
Parkkipaikat
-
Toimistotila
-
Vesipiste
-
Voimavirta
-
WC
