
Liikehuoneisto Ullanlinna Helsinki
330’000 € | 162 m² | Kapteeninkatu 7, Helsinki

Kohdetta välittää
KTM, LKV Antti Soivio
- 0400 446553
- [javascript protected email address]

Myydään tyylikäs liikehuoneisto upealla paikalla Ullanlinnassa!
Arvostetulla alueella Helsingin Ullanlinnassa on sekä myynnissä että vuokrattavana todella tyylikäs liikehuoneisto. Tila soveltuu mainiosti myymäläksi, näyttelytilaksi, galleriaksi, toimistoksi tai työtilaksi esimerkiksi arkkitehdille, kirjanpitäjälle, tilintarkastajalle, graafikolle, taiteilijalle, asianajajalle…
Myydään vuokrattuna (toistaiseksi voimassa oleva sopimus).
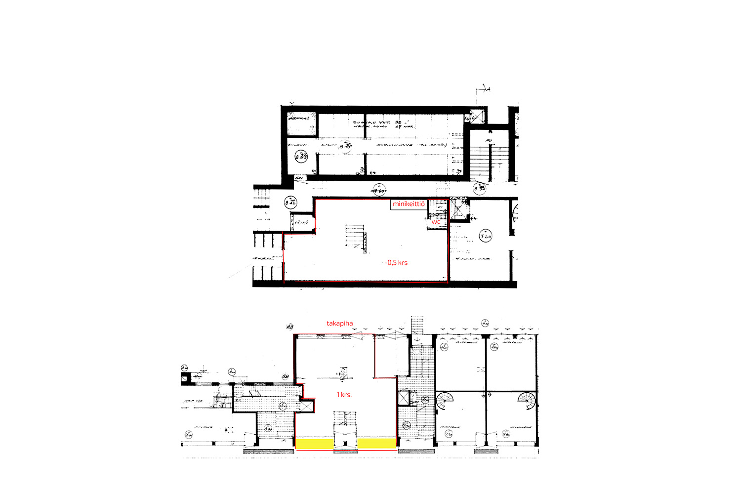
Noin 162-nelilöinen huoneisto sijaitsee aivan Kapteeninpuistikkoa vastapäätä asuinkerrostalon ensimmäisessä kerroksessa. Tilat ovat kahdessa tasossa. Ulko-ovesta astutaan portaikkoon, josta kuljetaan muutaman porrasaskelman verran joko ylä- tai alakertaan. Varsinaista katutason tilaa huoneistossa ei siis ole. Molemmista kerroksista on ainakin osittain näkymä kadulle. Tilassa on isot, näyteikkunoiksi hienosti sopivat ikkunat. Pohjakuvaan merkittynä punaisella katkoviivalla tilan 1. krs ja puolikas kerros alaspäin. Keltainen väri pohjakuvassa on katutasossa olevan ikkunan ja 1 krs. välille jäävä tila.
Yläkerta on kokonaisuudessaan valoisaa ja vaaleaa avotilaa, alakerrassa on kaksi neuvottelutilaa, siisti ja moderni keittiö sekä wc. Yläkertaan on kulku myös sisäpihan puolelta leveän lastausoven kautta.
Hyvä yhtiö, paljon isoja remontteja on jo tehtynä. Rakennukseen on suunnitteilla julkisivuremontti lähitulevaisuudessa.
Meripuistoon, meren rantaan ja Kaivopuistoon on vain parinsadan metrin matka!
Kohdetiedot
Sijainti
Katuosoite: Kapteeninkatu 7, 00140 Helsinki
Kaupunginosa: Ullanlinna
Ympäristö: Asuinrakennuksia, liikehuoneistoja, Kapteeninpuistikko, meren ranta, Meripuisto, Kaivopuisto
Tontti
Pinta-ala: 2’085 m²
Kiinteistötunnus: 91-7-128-17
Omistus: Oma
Rakennus/huoneisto
Pinta-alat: Noin 162 m²
Kiinteistötyyppi: Kerrostalo
Tilatyyppi: Liikehuoneisto
Kunto, varusteet ja palvelut: Hyvä kunto, keittiö, wc, koneellinen poistoilmanvaihto, lastausovi
Rakennusvuosi: 1963
Lämmitys: Kaukolämpö
Vapautuu: Vuokrattu
Myyntihinta ja kulut
Velaton myyntihinta: 330’000 €
Hoitovastike: 945 €/kk

Kohteen ominaisuudet
-
Asfaltoitu piha
-
Keittiö
-
Toimistotila
-
Vesipiste
-
WC
