
Laadukas hallikiinteistö Tarmola Porvoo
799’000 € | 561 m² | Timpurinkuja 9, Porvoo

Kohdetta välittää
KTM, LKV Antti Soivio
- 0400 446553
- [javascript protected email address]

Myynnissä laadukas hallikiinteistö omalla korjaamo- ja pesuhallilla Porvoossa!
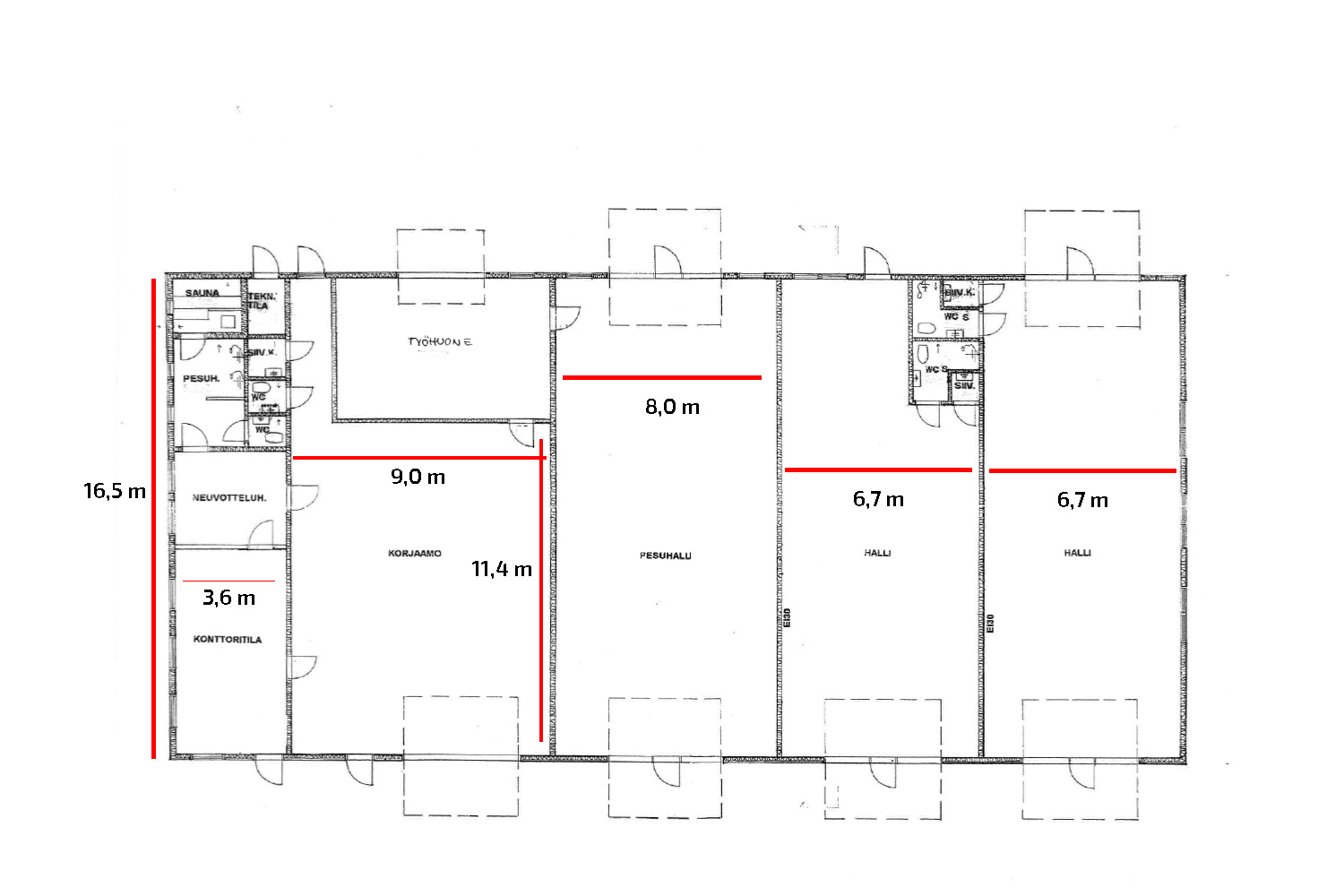
Porvoon Tarmolan teollisuus- ja toimitila-alueella on myynnissä monikäyttöinen ja erittäin hyväkuntoinen hallikiinteistö.
Rakennuksen pinta-ala on yhteensä noin 561 m² (+säilytysparvi toimiston päällä) ja se on jaettu neljään erilliseen hallitilaan. Sisätilan vapaa korkeus kaikissa hallitiloissa on noin 5 metriä. Isoimmassa tilassa on kuorma-autolle sopiva pesuhalli (läpiajettava) ja väliseinän toisella puolella korjaamotilaa, jossa myös autonosturi. Pesuhallin pinta-ala on noin 132 m² ja korjaamohallin pinta-ala on noin 148,5 m². Korjaamohallin ja pesuhallin sähkökäyttöiset nosto-ovet (L3,9 m x K4,5 m) käyntiovella. Korjaamohallin tiloista kulku toimistotiloihin ja muihin sosiaalitiloihin. Keittiön lisäksi sosiaalitiloissa sauna ja suihkutilat.
Kaksi muuta hallitilaa toimii tällä hetkellä varastotiloina ja niiden pinta-alat ovat noin 116 m² ja 104 m². Tiloissa wc- ja vesipisteet sekä lattiakaivot. Varusteluun kuuluu myös sähkökäyttöiset nosto-ovet (L3,9 m x K4,5 m) käyntiovella.
Kaikissa tiloissa on pitkäaikaiset, hyvät vuokralaiset. Neliövuokrien keskiarvo on noin 9,30 €/m²/kk.
Rakennukset sijaitsevat hyvällä paikalla Tarmolassa, josta lyhyt matka Porvoon moottoritielle.
Erinomaiset ja monipuoliset tilat hyvällä sijainnilla!
Kohdetiedot
Sijainti
Katuosoite: Timpurinkuja 9, 06150 Porvoo
Kaupunginosa: Tarmola
Ympäristö: Teollisuus- ja toimitila-alue
Tontti
Pinta-ala: 2612 m²
Omistus: Oma
Asemakaava: Teollisuus- ja varastorakennusten korttelialue e=0,4 II
Rakennus
Pinta-alat: 561 m² + säilytysparvi toimiston päällä
Kiinteistötyyppi: Teollisuusrakennus
Rakennusvuosi: 2008
Energiatodistus: Laki ei edellytä todistusta
Huoneistoselitelmä: 4kpl hallitilaa, toimisto ja iso piha
Kunto, varusteet ja palvelut: Hyvässä kunnossa olevat tilat
Pysäköinti: Pihassa
Myyntihinta ja kulut
Velaton myyntihinta: 799’000 €
Kiinteistövero: 1 267,25 €
Kiinteistövakuutus: 626,73 €
Sähkö: 6 044,14 €/vuodessa (laskutetaan käyttäjiltä)
Lämmitys: 8 612,69 €/vuodessa (kaukolämpö)
Katso alla hallin esittelyvideo!

Kohteen ominaisuudet
-
Asfaltoitu piha
-
Ilmalämpöpumppu
-
Ilmastointi
-
Keittiö
-
Lattiakaivo
-
Murtohälytin
-
Nosto-ovi
-
Parkkipaikat
-
Parvi
-
Sauna
-
Suihku
-
Toimistotila
-
Valvontakamera
-
Vesipiste
-
Voimavirta
-
WC
