
Iso parvellinen hallitila Juvanmalmi Espoo
185’000 € | Halli 95,5 m² + 68 m² (parvi) | Rajapaaluntie 10, Espoo

Kohdetta välittää
KTM, LKV Antti Soivio
- 0400 446553
- [javascript protected email address]

Myynnissä iso ja hyväkuntoinen hallitila Espoon Juvanmalmilla!
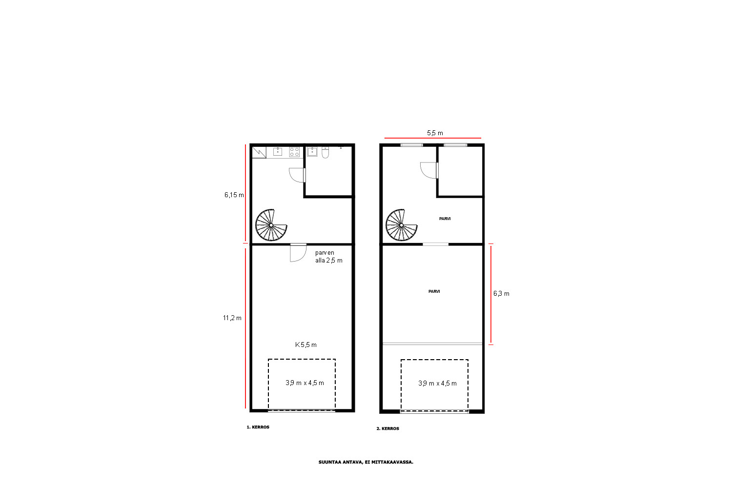
Espoon Juvanmalmilla on myynnissä iso, noin 95,5 m² parvellinen hallitila. Parven pinta-ala on yhteensä 68 m². Tila soveltuu hyvin varasto- ja tuotantotilaksi.
Hallissa on kaksi kerrosta. Alakerta, jonka kokonais pinta-ala on 95,5 m², koostuu etuosan avoimesta tilasta (61,5 m²) ja takaosan keittiö/taukotilasta (34 m²). Takaosan taukotilassa on avokeittiönurkkaus ja wc sekä suihkutila. Hallin varusteluun kuuluu takaosan sosiaalitilojen lisäksi sähkökäyttöinen ja käyntiovellinen nosto-ovi (3,9 m x 4,5 m), lattiakaivo hiekan ja öljyn erotuksella, voimavirtapistokkeita ja muutama vesipiste. Vapaa korkeus hallin puolella on noin 5,5 metriä.
Tilassa isokokoinen parvi/toinen kerros, joka on ollut toimistotilakäytössä. Parven koko on noin 34 m² ja siihen on rakennettu jatkeeksi kevytrakenteinen lisäsäilytysparvi (noin 34 m²). Parven alla (hallitilassa) korkeus noin 2,5 metriä.
Tilan pinta-ala on yhtiöjärjestyksen mukaan 103,3 m². Hallin parvelle ei ole voimassa olevaa rakennuslupaa. Yhtiökokouksessa 2025 on päätetty, että rakennuksen parville haetaan rakennusluvat.
Yhtiö on hakeutunut osittain arvonlisäverovelvolliseksi, mutta myynnissä olevan hallin osalta ei lisätä arvonlisäveroa hoitovastikkeeseen.
Lämmitysmuotona on suora sähkölämmitys. Tiloissa on tilakohtainen sähkö- ja vesimittaus.
Asfaltoitu ja hyvä piha-alue. Nopea yhteys Kehä III liittymään.
Tila ei sovellu autopesulaksi eikä -korjaamoksi!
Monipuolinen tila hyvällä sijainnilla!
Kohdetiedot
Sijainti
Katuosoite: Rajapaaluntie 10, Espoo
Kaupunginosa: Juvanmalmi
Ympäristö: Teollisuusalue (Kaavamerkintä T)
Tontti
Pinta-ala: 2160 m²
Omistusmuoto: Espoon kaupungin vuokratontti (vuokra-aika päättyy 28.2.2044)
Rakennus/huoneisto
Pinta-alat: Noin 95 m² + parvi 34 m² (+34 m²)
Rakennustyyppi: Varastohallirakennus
Valmistusvuosi: 2014
Huoneistoselitelmä: Hallitila + parvi
Huoneistotyyppi/Käyttötarkoitus: Varastotila/työtila + toimisto
Kunto, varusteet ja palvelut: Uudehko tila, sähkökäyttöinen käyntiovellinen nosto-ovi, lattiakaivo hiekan ja öljy erotuksella, vesipiste, wc, suihku ja avokeittiötila (taukotila), toimistotila
Lämmitys: Suora sähkölämmitys
Pysäköinti: Pihassa
Vapautuu: Sopimuksen mukaan
Myyntihinta ja kulut
Velaton hinta: 185’000 €
Hoitovastike: 240 €/kk
Sähkö- ja vesimaksu: Mittauksen mukaan
Lämmitys: Oma sähkösopimus (mittauksen mukaan

Kohteen ominaisuudet
-
Asfaltoitu piha
-
Keittiö
-
Lattiakaivo
-
Nosto-ovi
-
Parkkipaikat
-
Parvi
-
Suihku
-
Toimistotila
-
Vesipiste
-
Voimavirta
-
WC
