
Elintarviketuotantokiinteistö Valko Loviisa
5,9 €/kk + alv | Noin 440 m² + katos 60 m² | Troolitie 8 C, Valko

Kohdetta välittää
KTM, LKV Antti Soivio
- 0400 446553
- [javascript protected email address]

Vuokrataan hyväkuntoinen elintarviketuotantokiinteistö!
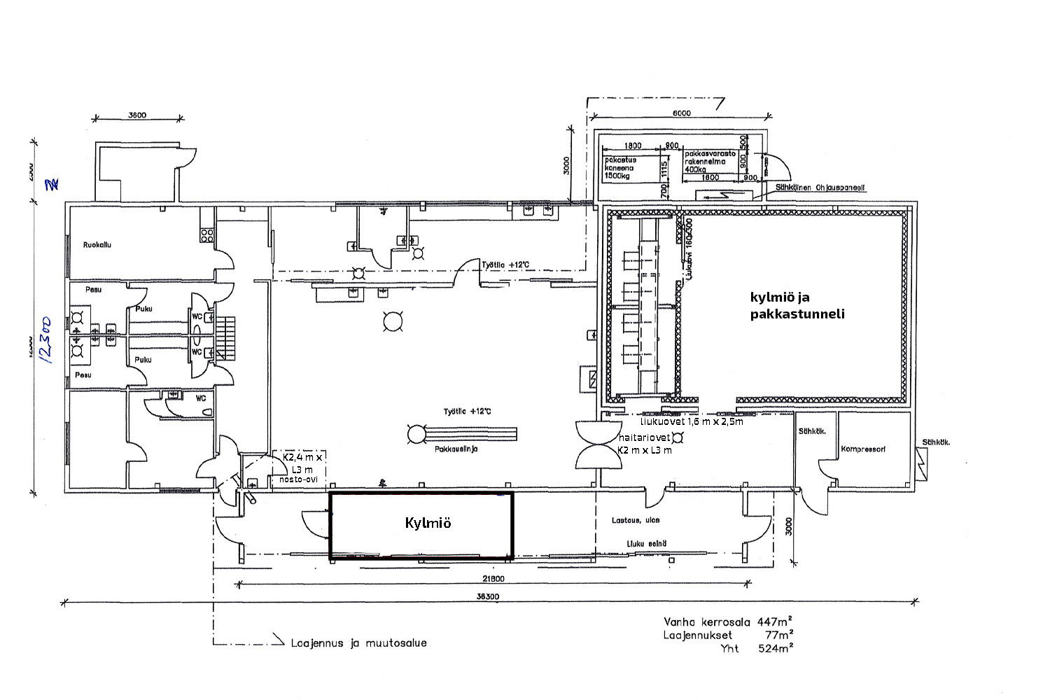
Valkon kylässä lähellä Loviisaa vuokrattavana hyväkuntoinen elintarviketuotantorakennus isoine kylmiöineen ja pakkashuoneineen sekä -tunneleineen. Rakennuksessa on lisäksi toimisto- ja sosiaalitilat.
Rakennuksen yhteispinta-ala on noin 500 m². Tuotantotilojen pinta-ala on noin 325 m² ja tilan vapaakorkeus on noin 3,9 metriä. Tilassa pakastamon pinta-ala on 100 m². Tuotantotilan varusteluun kuuluu nosto-ovia, lattiakaivoja ja vesipisteitä. Rakennuksessa on lisäksi toimisto- ja sosiaalitilaa noin 80 m² ja 40 m² tekninen tila. Rakennuksen toisella sivulla on noin 60 m² katostilaa ja katoksen sisällä on lisäkylmiö.
Rakennuksessa edullinen lämmitys ilmavesilämpöpumpulla (plussalla pito maksaa noin 2000 € vuodessa).
Iso piha-alue, jossa on hyvin pysäköintipaikkoja ja liikkumatilaa raskaalle kalustolle.
Rakennus sijaitsee Valkon satama-alueella merenrannalla. Ollut kalanjalostuskäytössä, mutta soveltuu lähes mihin tahansa elintarviketuotantoon. Todella siistit ja hyväkuntoiset tilat!
Kiinnostuitko? Pyydä lisätietoja!
Kohdetiedot
Sijainti
Katuosoite: Troolitie 8 C, 07910 Valko
Kaupunginosa: Valko
Ympäristö: Teollisuusalue ja satama
Rakennus/huoneisto
Pinta-ala: Noin 440 m² + 60 m² katos
Rakennustyyppi: Elintarvikekiinteistö (Muut maa-, metsä- ja kalatalouden rakennukset)
Rakennusvuosi: 1991
Tilaselitelmä: Elintarviketuotantotila ja pakkastilat sekä toimisto- ja sosiaalitilat
Energiatodistus: Ei lain edellyttämää todistusta
Kunto, varusteet ja palvelut: Hyvä kunto, hyväksyttyä elintarviketuotantotilaa, kylmävarastoa, toimisto- ja sosiaalitilaa.
Lämmitys: Ilmavesilämpöpumpulla
Vapautuu: Heti vapaa
Vuokrahinta ja kulut
Kuukausivuokra: 5,9 €/kk + alv
Sähkömaksu: Mittauksen mukaan (vuokralainen tekee oman sähkösopimuksen)
Vesimaksu: Mittauksen mukaan
Lämmitys: Vuokralainen vastaa kuluista
Auraus ja jätehuolto: Vuokralainen vastaa itse järjestelyistä ja kuluista
Muut ehdot: Vakuus 3 kk:n vuokraa vastaava summa, minimivuokrasopimusaika 12kk määräaikaisena ja sen jälkeen jatkuu toistaiseksi voimassa olevana 3kk irtisanomisajalla, luottotietojen on oltava kunnossa

Kohteen ominaisuudet
-
Lattiakaivo
-
Nosto-ovi
-
Parkkipaikat
-
Toimistotila
-
Vesipiste
-
WC
