
Iso sijoituskiinteistö Viikki Helsinki
268'000 € | 861 m² | Jokisuuntie 2, Helsinki

Kohdetta välittää
KTM, LKV Antti Soivio
- 0400 446553
- [javascript protected email address]

Myynnissä laadukas hallikiinteistö Viikissä!
Helsingin Viikinrannan pienyritysalueella on myynnissä laadukas ja moderni hallikiinteistö.
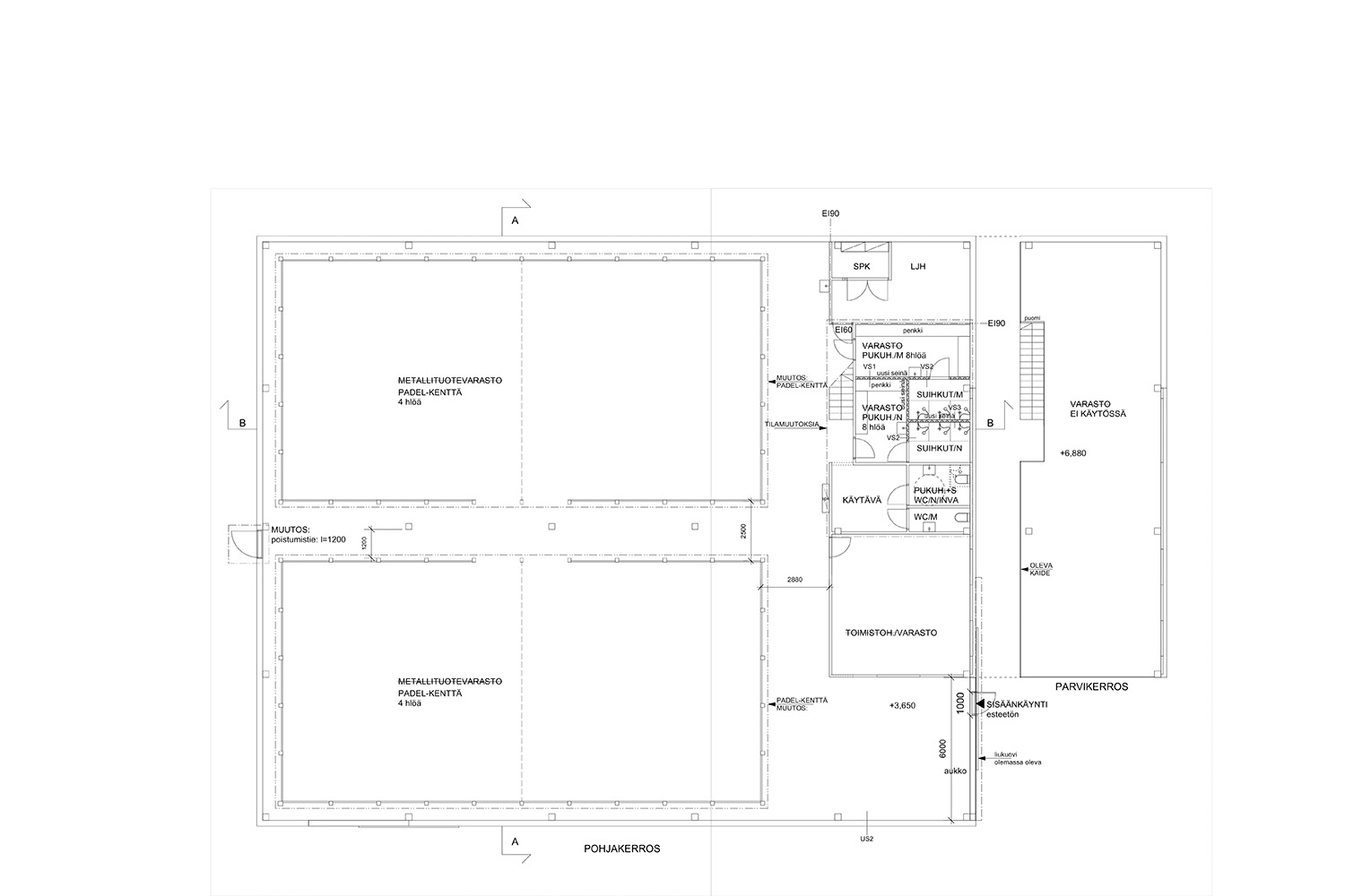
Ison hallikiinteistön pinta-ala on yhteensä noin 861 m². Alun perin metallivarastona toiminut kiinteistö on muutettu liikuntatilaksi. Kohde myydään vuokrattuna toistaiseksi voimassa olevalla vuokrasopimuksella 6kk irtisanomisajalla ja vuokra on 5500 €/kk (Alv 0%). Kiinteistö on tällä hetkellä Padel seuran käytössä. Hallissa on kaksi täysikokoista padel kenttää, toimistotila, pukuhuoneet sekä suihkutilat. Tiloissa on pääosin koneellinen ilmanvaihto lämmön talteenotolla. Lämmitys tiloissa kaukolämmöllä. Sisätilan vapaa korkeus on noin 5 metriä. Halliin on kaksi manuaalista nosto-ovea, joista etummainen on K4,5 m ja L5,5 m ja sivulla oleva nosto-ovi on noin L5 xK5 m.
Vuokrasopimus Padel seuran kanssa on voimassa toistaiseksi 6kk irtisanomisajalla. Vuokralainen vastaa sähkö-, vesi ja lämmityskuluista sekä siivouksesta ja piha-alueen puhtaana pidosta ja talvella myös aurauksesta. Kiinteistön omistajan on vastannut hallin peruskorjaustarpeista ja tonttivuokrasta sekä kiinteistön vakuutusmaksuista.
Hallitilan käyttötarkoituksen saa muutettua takaisin myös varastotilaksi.
Asfaltoitu piha-alue, jossa 12 parkkipaikkaa ja 3 kpl lämpötolppapaikkoja.
Tontti on Helsingin kaupungin vuokratontti ja se on pinta-alaltaan 1’536 m². Vuokrasopimus on voimassa vuoteen 2034 saakka.
Viikinrannan pienyritysalueella toimii tällä hetkellä monia yrityksiä, mm. metallialan yrityksiä, elektroniikkayrityksiä, mediatuotantotoimisto, liikennöitsijöitä sekä asukkaita palvelevia kiinteistöhuoltoyrityksiä ja rengasliikkeitä sekä autokorjaamoja. Alueen käyttötarkoitusta arvioidaan todennäköisesti uudestaan 2030-luvun alussa ja alueen kaavoitusasioista voi lukea lisää Helsingin kaupungin sivuilta päätös osiossa Diaarinumero HEL 2013-014109.
Monipuolinen ja hyväkuntoinen hallikiinteistö hyvällä sijainnilla!
Kohdetiedot
Sijainti
Osoite: Jokisuuntie 2, 00560 Helsinki
Kaupunginosa: Viikki
Ympäristö: Viikinrannan pienyritysalue
Tontti
Pinta-ala: 1’536 m²
Omistusmuoto: Helsingin kaupungin vuokratontti (sopimus voimassa vuoteen 2034 asti)
Kiinteistötunnus: 91-36-24-4
Rakennus/huoneisto
Pinta-ala: Noin 625,3 m² + 2krs 101,5 m² (parvi)
Huoneistoselitelmä: Liikuntatila + suihkutilat
Kunto, varusteet ja palvelut: Hyvässä kunnossa olevat tilat, useita vesipisteitä, 2 manuaalista nosto-ovea, voimavirtapistokkeita, sosiaalitilat (wc ja suihku)
Lämmitys: Kaukolämpö
Pysäköinti: Pihassa 12 kpl parkkipaikkoja + 3kpl lämpötolppaa
Vapautuminen: Myydään vuokrattuna
Myyntihinta, kulut ja tuotto
Velaton myyntihinta: 268'000 €
Vuokratuotto: 5'500 €/kk (alv 0%)
Vakuutus: 650 €/v (vuokranantaja on vastannut)
Tonttivuokra: 16’272 €/v
Kiinteistövero 850 €/v
Vesi, sähkö ja lämmitys: Vuokralainen vastaa kuluista
Auraus ja jätehuolto: Vuokralainen vastaa kuluista ja järjestelyistä

Kohteen ominaisuudet
-
Asfaltoitu piha
-
Nosto-ovi
-
Parkkipaikat
-
Suihku
-
Toimistotila
-
Vesipiste
-
Voimavirta
-
WC
