
Toimisto-, työ- ja varastotilaa Mikkola Vantaa
999 €/kk + alv | 113 m² | Uranuksenkuja 10, Vantaa

Kohdetta välittää
KTM, LKV Antti Soivio
- 0400 446553
- [javascript protected email address]

Vuokrataan hyvää toimisto-, työ- ja varastotilaa Vantaan Mikkolassa!
Hyväkuntoisen tuotanto-, varasto- ja toimistorakennuksen päädyssä on vuokrattavana toimistoksi tai työtilaksi sopivaa, siistiä tilaa.
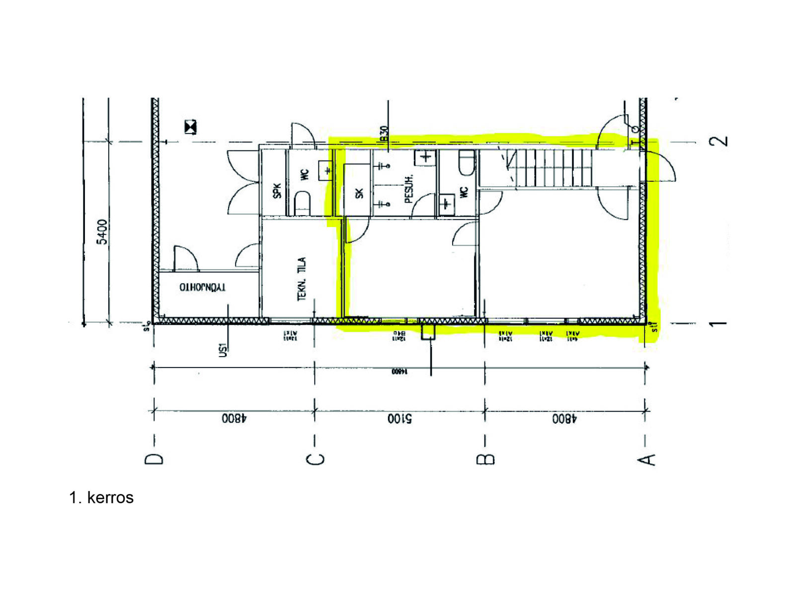
Vuokrattavana olevat, noin 69-neliöiset tilat sijaitsevat rakennuksen toisessa kerroksessa. Tiloissa on kaksi toimistohuonetta, keittiö ja wc. Samassa yhteydessä on myös katutasossa oleva, 44-neliöinen tila, missä työ- ja varastotilaa, wc ja suihkuhuone. Yläkerran tiloihin kuljetaan alakerran tilojen kanssa samasta käyntiovesta. Alakerran varastotilaan mahdollista erikseen sovitusti asentaa lastausovi.
Rakennukseen on asennettu valokuituyhteys. Tiloissa on koneellinen ilmanvaihto sekä vesikiertoinen patterilämmitys (kaukolämpö). Lisäksi kesällä mukavuutta tuovat ilmalämpöpumput viilennykseen.
Asfaltoidussa pihassa on runsaasti parkkipaikkoja. Rakennus sijaitsee erinomaisella paikalla; alueelle on hyvät bussiyhteydet ja Lahdenväylälle matkaa vain muutama sata metriä.
Lahdenväylälle matkaa vain muutama sata metriä!
Kohdetiedot
Sijainti
Katuosoite: Uranuksenkuja 10, 01480 Vantaa
Kaupunginosa: Mikkola
Ympäristö: Teollisuusaluetta
Rakennus/huoneisto
Pinta-alat: Noin 113 m²
Rakennustyyppi: Hallirakennus
Rakennusvuosi: 1987
Energiatodistus: Ei lain vaatimaa todistusta
Huoneistoselitelmä: Yläkerta: kaksi toimistohuonetta, keittiö, wc. Alakerta: kaksi toimistohuonetta, wc, suihkutila
Kerros: 1.–2.
Kunto, varusteet ja palvelut: Hyvä kunto. Toimistohuoneita, wc, suihku, minikeittiö, vesipisteitä, siivouskomero, varstotilaa
Vapautuu: Heti vapaa
Pysäköinti: Pihassa monelle autolle tilaa
Vuokrahinta ja kulut
Kuukausivuokra: 999 €/kk + alv
Sähkö- ja vesimaksu: Koko tila 199 €/kk + alv
Lämmitys: Sisältyy vuokraan
Muuta: Vakuus 3 kk:n vuokraa vastaava summa, minimisopimus 12 kk, luottotietojen oltava kunnossa

Kohteen ominaisuudet
-
Asfaltoitu piha
-
Ilmastointi
-
Keittiö
-
Parkkipaikat
-
Suihku
-
Toimistotila
-
Vesipiste
-
WC
