
Monipuolinen liiketila Keskusta Porvoo
199'800 € | 102,5 m² | Lundinkatu 10, Porvoo

Kohdetta välittää
KTM, LKV Antti Soivio
- 0400 446553
- [javascript protected email address]

Monipuolinen liiketila Porvoon keskustassa myytävänä!
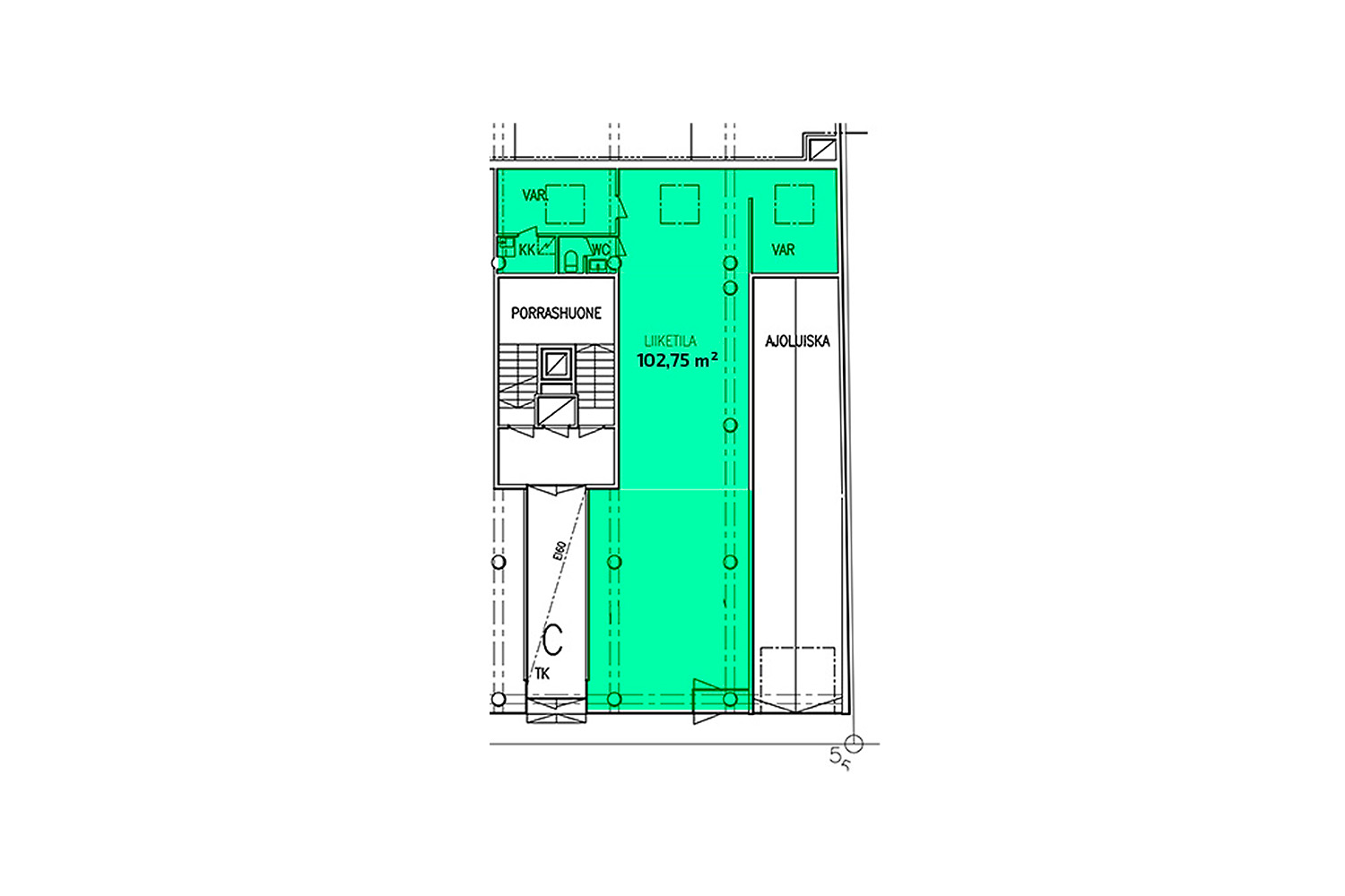
Myydään moneen käyttöön sopiva noin 102 m² kokoinen liiketila Porvoon torin kupeesta. Tilassa on isot näyteikkunat suoraan Porvoon torille, taatusti hyvä näkyvyys!
Myydään vuokrattuna. Liiketila on aikaisemmin toiminut Specsaversin vastaanottotilana ja siellä on useampi vesipiste valmiina. Tila on tällä hetkellä vuokrattuna parturi/kampaamolle toistaiseksi voimassa olevalla vuokrasopimuksella.
Varsinaisen liiketilan lisäksi on takaosassa henkilökunnan keittiö/taukotila sekä WC.
Huoneistoon on Lundinkadulta (torin kupeesta) oma sisäänkäynti tilaan.
Asiakkaille paikoitustilaa (maksullinen) löytyy lähellä olevilta kaduilta.
Huippusijainnin liiketila myytävänä Porvoon keskustassa!
Kohdetiedot
Sijainti
Katuosoite: Lundinkatu 10 (liiketila 6 A), 06100 Porvoo
Kaupunginosa: Keskusta
Ympäristö: Porvoon torialue
Tontti
Pinta-ala: 1876 m²
Omistus: Oma
Rakennus/huoneisto
Pinta-ala: 102,5 m²
Rakennustyyppi: Kerrostalo
Rakennusvuosi: 1966
Energiatodistus: C2018
Huoneistoselitelmä: Liiketila, keittiö/taukotila, wc ja varastotila
Kunto, varusteet ja palvelut: Hyväkuntoinen tila ja Porvoon kaikki palvelut lähellä.
Pysäköinti: Kadulla
Vapautuminen: Vuokrattu
Myyntihinta ja kulut
Myyntihinta:127'760,1 €
Velkaosuus: 72'039,9 €
Velaton myyntihinta: 199'800 €
Vastikevelka: 28’322,41 €
Hoitovastike: 558,79 €/kk
Alv-vastike: 26,25 €/kk
Rahoitusvastike: 627,19 €/kk
Sähkömaksu: Oma sähkösopimus
Lämmitys: Sisältyy vastikkeeseen
Huoneisto on otettu taloyhtiön hallintaan. Huoneiston uudella omistajalla on mahdollisuus saada hallintaan ottopäätös puretuksi, mikäli ostaja suorittaa huoneistoon kohdistuvat maksamattomat vastikkeet ja hallintaan otosta aiheutuneet kulut (eli saldo).

Kohteen ominaisuudet
-
Keittiö
-
Toimistotila
-
Vesipiste
-
WC
