
Showroom/liiketila keskusta Porvoo
1'999 €/kk + alv | 95 m² | Rihkamakatu 2, Porvoo

Kohdetta välittää
KTM, LKV Antti Soivio
- 0400 446553
- [javascript protected email address]

Tyylikäs ja moneen soveltuva toimitila ihanassa vanhassa kaupungissa Porvoon keskustassa!
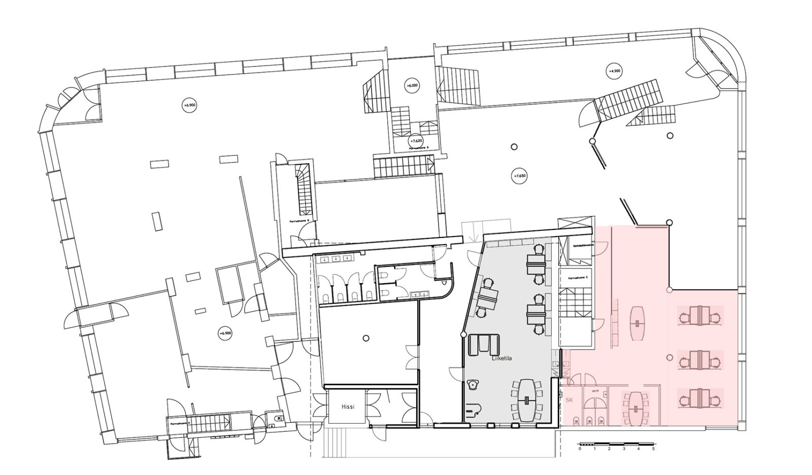
Vuokrattavana tyylikäs toimitila kauppatavaratalon toisesta kerroksesta. Tilaan kulku tavaratalon kautta tai rakennuksen takaoven kautta. Soveltuu hyvin liiketilaksi, toimistoksi tai yrityksen showroomiksi. Tila on pohjakuvassa punaisella merkitty alue ja se on yhteensä 95 m².
Valoisa, rauhallinen ja tyylikkäästi sisustettu tila, josta idylliset näkymät Porvoon vanhan kaupungin kävelykadulle. Tila soveltuisi erinomaisesti esim. sisustusalan showroomiksi tai muunlaisen yrityksen esittelytilaksi. Tilassa on tällä hetkellä yhteensä 4 tyylikästä työpistettä, neuvotteluhuone ja keittiötila sekä wc.
Tilassa koneellinen viilennys kesällä sekä langaton verkkoyhteys.
Paikoitustilaa löytyy aivan läheltä (maksullinen) tai 5 min kävelymatkan päästä (maksuttomia).
Kauppatavaratalon alakerrassa toimii tällä hetkellä sisustusliike ja ruokaravintola.
Hyvät tilat monenlaisille yrityksille ihanteellisella sijainnilla!
Kohdetiedot
Sijainti
Katuosoite: Rihkamakatu 2, 06100 Porvoo
Kaupunginosa: Keskusta
Ympäristö: Asuntoja, toimistoja, liikkeitä, ravintoloita, vanha kaupunki
rakennus/huoneisto
Pinta-alat: 95 m²
Huoneistoselitelmä: Toimistotila/showroom
Kunto, varusteet ja palvelut: Erittäin hieno toimistotila, keittiö, wc-tilat. Porvoon kaikki palvelut lähellä
Vapautuu: Heti vapaa
Pysäköinti: Maksulliset paikat lähellä ja maksuttomia paikkoja vähän pidemmällä
Vuokrahinta ja kulut
Kuukausivuokra: 1'999 €/kk + alv
Sähkö- ja vesimaksu: Sisältyy vuokraan
Lämmitys: Sisältyy vuokraan
Muut ehdot: Minimisopimuskausi 12 kk, vakuus 3 kk:n vuokraa vastaava summa, luottotietojen on oltava kunnossa

Kohteen ominaisuudet
-
Ilmastointi
-
Keittiö
-
Toimistotila
-
Vesipiste
-
WC
