
Myymälä- ja toimistotila Klaukkala Nurmijärvi
Alkaen 1'495 €/kk + alv | 380 m² | Yrittäjänkulma 5, Nurmijärvi

Kohdetta välittää
KTM, LKV Antti Soivio
- 0400 446553
- [javascript protected email address]

Vuokrattavana myymälä- ja toimistotilaa hallirakennuksesta Klaukkalassa!
Nurmijärven Klaukkalassa teollisuusalueella on vuokrattavana isosta hallirakennusta sekä myymälä että toimistotilaa. Tilat ovat olleet autovaraosia myyvän yrityksen käytössä pitkään. Tilat sopivat mainiosti myymäläkäytön lisäksi esimerkiksi monenlaiseen varastointiin.
Huipputarjous! 3 ensimmäistä kk -50% normaalivuokrahinnasta!
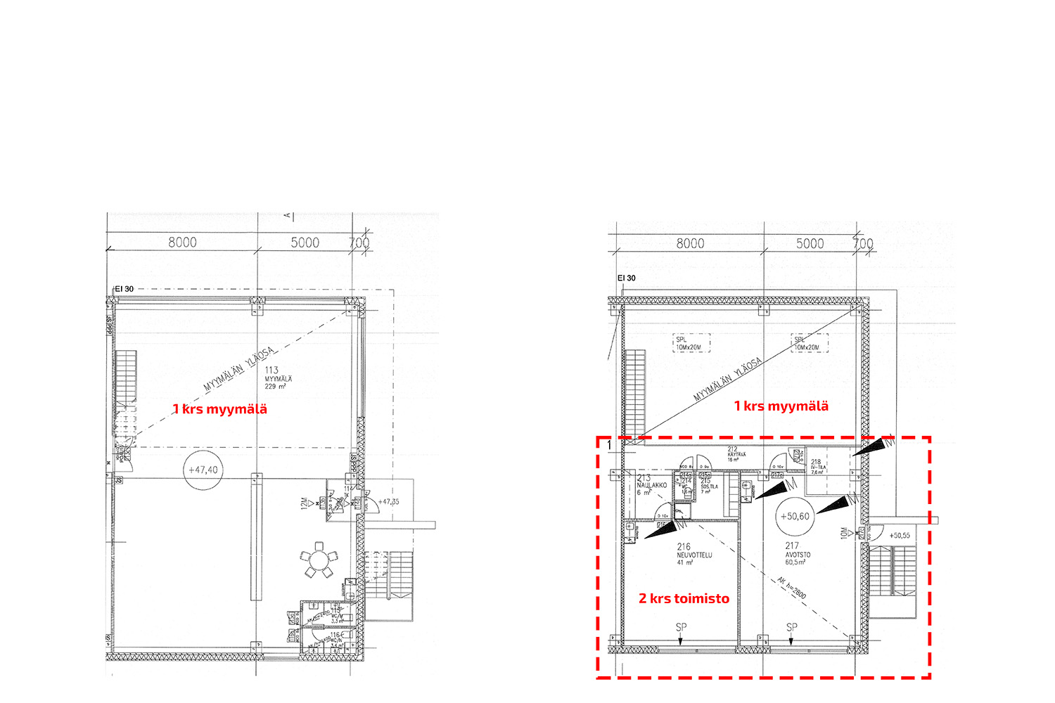
Myymälä on hyväkuntoinen ja valoisa 240 m², jossa isot ikkunat ja hyvä täten hyvä näkyvyys! Pohjakuvaan tila merkittynä punaisella. Takaosasta löytyy lisäksi wc-tila ja vesipiste. Myymälätilan yläpuolella lisäksi toimistotilaa 140 m². Toimiston yhteydessä minikeittiö, suihku ja wc-tilat.
Lisäksi on tarjolla seuraavasti;
- Hallitila noin 84 m² kuukausivuokrahinta 990 € + alv
Myymälän vieressä korkea varastohallitila pinta-alaltaan 84 m² (pohjakuvassa vihreällä katkoviivalla). Hallin korkeus vaihtelee 6-8 metrin välillä ja tilan leveys on 4,5 metriä sekä pituus 18,5 metriä. Hallitila on läpiajettava ja nosto-ovien koko on L3,5 m x K 4,5 m. Hallista lisäksi sisäkautta kulku myymälätilaan (isot pariovet). Halli soveltuu hyvin moneen varastointiin eikä siellä ole vesipistettä eikä lattiakaivoja.
Samassa rakennuksessa toimii myös autopesula, joka on vuokrattu!
Vuonna 2011 rakennetussa betonielementtihalli-hallissa on lämmitysmuotona kaukolämpö. Lämmitys sisältyy vuokraan. Vuokralainen vastaa sähkö- ja vesimaksuista sekä jätehuollon kuluista että järjestelyistä. Pesuhallin osalta vuokralainen vastaa lisäksi tilojen ylläpidosta (valaisinhuolto, ovihuolto ja korjaukset sekä hiekanerotuskaivojen ja öljynerotuskaivon tyhjennyksen (min. 1 krt/vuosi)).
Tilat ovat heti vapaat!
Rakennuksen piha on asfaltoitu ja aidattu. Aidassa on sähkötoiminen portti. Vuokralaiselle kuuluu pari autopaikkaa pihassa.
Tilat voidaan vuokrata erikseen tai kokonaisuutena – monien mahdollisuuksien tila vuokrattavana!
Kohdetiedot
Sijainti
Katuosoite: Yrittäjänkulma 5, 01800 Nurmijärvi
Kaupunginosa: Klaukkala
Ympäristö: Teollisuusalue
Rakennus/huoneisto
Pinta-ala: 240 m² + 140 m²
Kiinteistötyyppi: Teollisuushallirakennus
Rakennusvuosi: 2011
Huoneistoselitelmä: Myymälä, toimisto
Energiatodistus: Laki ei edellytä
Kunto, varusteet ja palvelut: Hyväkuntoiset tilat. Toimistotiloja, minikeittiö, wc-tiloja sekä hyvä valaistus
Korkeus: 6 metriä
Vapautuu: Heti vapaa
Pysäköinti: Erikseen sovitusti pihassa
Vuokrahinta ja kulut
Kuukausivuokra: Alkaen 1495 €/kk + alv (norm. 2’900 €/kk + alv)
Vesimaksu: Vuokralaisen lukuun mittauksen mukaan
Sähkö: Vuokralaisen lukuun mittauksen mukaan
Lämmitys: Sisältyy vuokraan
Jätehuolto: Vuokralainen vastaa kuluista ja järjestelyistä
Muut ehdot: Minimisopimuskausi 12 kk, vakuus 3 kk:n vuokraa vastaava summa ja luottotietojen on oltava kunnossa

Kohteen ominaisuudet
-
Aidattu alue
-
Asfaltoitu piha
-
Keittiö
-
Lattiakaivo
-
Nosto-ovi
-
Parkkipaikat
-
Suihku
-
Toimistotila
-
Vesipiste
-
Voimavirta
-
WC
