
Toimistotilaa Karhunkorpi Nurmijärvi
10 €/m²/kk + alv | Noin 100 m² | Karhutie 12, Nurmijärvi

Kohdetta välittää
KTM, LKV Antti Soivio
- 0400 446553
- [javascript protected email address]

Vuokrattavana erinomainen toimistotila ison betonihallin toisesta kerroksesta!
Karhunkorven teollisuusalueella, Nurmijärvellä, on vuokrattavana tyylikäs ja hyväkuntoinen toimistotila betonihallirakennuksen toisesta kerroksesta.
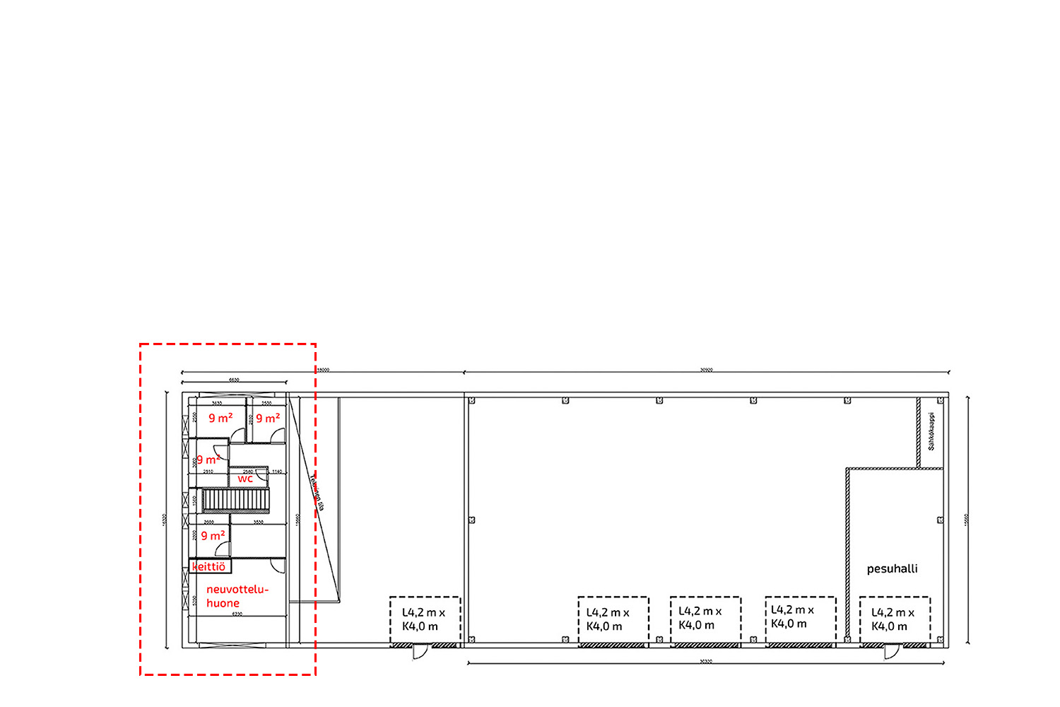
Ison hallirakennuksen yhteydessä (toisessa päädyssä) on noin 100 m² hieno toimistotila. Tilassa 4 pienempää huonetta (n 10 m²), yksi neuvotteluhuone, avokeittiö ja wc-tilat. Toimiston ikkunat ovat äänieristetyt, eikä moottoritien äänet kuulu tilaan ollenkaan. Jokaisessa toimistohuoneessa on ilmalämpöpumput.
Piha-aluetta vuokralaisen käytössä erikseen sovitusti. Pihaa ei ole aidattu. Vuokralainen vastaa omasta jätehuollostaan ja talvella oman pihaosuuden aurauksesta.
Hallikiinteistön näkyvyys ohiajavalle liikenteelle on erinomainen. Karhunkorven teollisuusalueelle on hyvät liikenneyhteydet ja 5 minuutin matka Ilvesvuoren teollisuuskeskittymään!
Hienot toimistilat nopeiden yhteyksien varrella!
Kohdetiedot
Sijainti
Katuosoite: Karhutie 12, 01900 Nurmijärvi
Kaupunginosa: Karhunkorpi
Ympäristö: Teollisuusalue
Rakennus/huoneisto
Pinta-alat: Noin 100 m²
Huoneistoselitelmä: Toimistotila
Kunto, varusteet ja palvelut: Hyvä kunto. Toimistohuoneita, neuvotteluhuone, avokeittiö, wc-tilat ja ilmalämpöpumput viilennykseen.
Lämmitys: Ilmalämpöpumput
Pysäköinti: Pihassa, erikseen sovitusti
Vapautuu: Heti vapaa
Vuokrahinta ja kulut
Kuukausivuokra: 10 €/m²/kk + alv
Käyttökulut: Vuokralainen vastaa sähkökuluista ja lämmityskuluista, aurauksesta talvella (oma pihaosuus) ja jätehuollosta.
Muut ehdot: Vakuus 3 kk:n vuokraa vastaava summa, minimisopimus 12 kk, luottotietojen on oltava kunnossa

Kohteen ominaisuudet
-
Ilmalämpöpumppu
-
Keittiö
-
Parkkipaikat
-
Toimistotila
-
Vesipiste
-
WC
