
Iso hallitila Kaupunginhaka Porvoo
199'800 € tai 1'190 €/kk, alv-vapaa | 210 m² | Puusepänkaarre 10, Porvoo

Kohdetta välittää
KTM, LKV Antti Soivio
- 0400 446553
- [javascript protected email address]

Myydään ja vuokrataan hallitila Kaupunginhaasta!
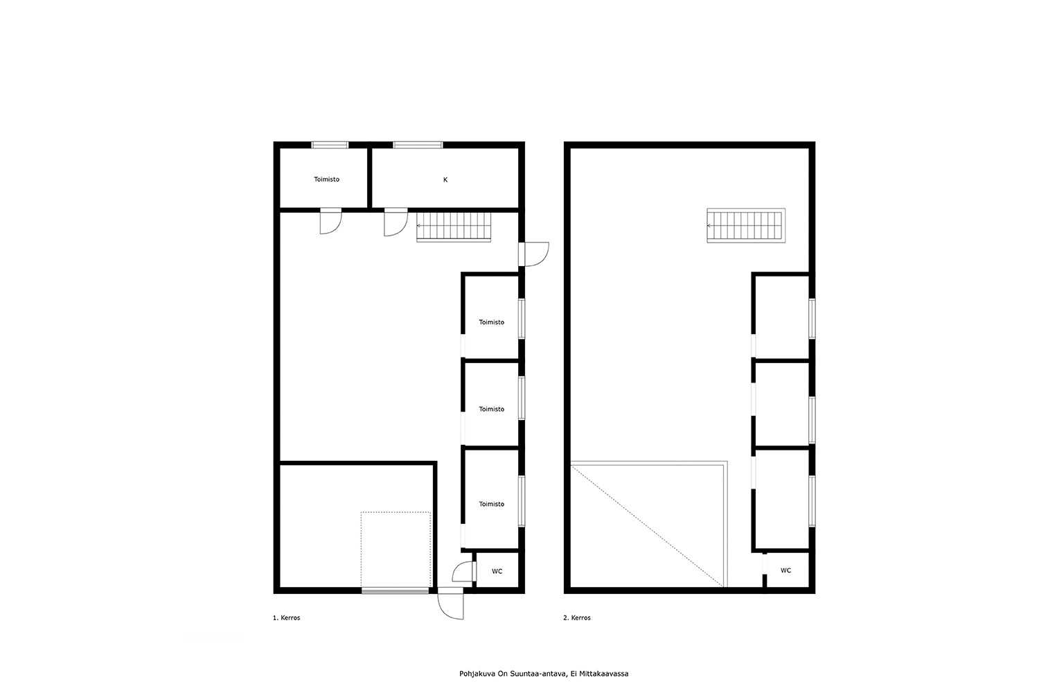
Porvoon Kaupunginhaassa on vuokrattavana ja myynnissä hyväkuntoinen sekä hyvin varusteltu hallitila. Tilassa on korkeaa sekä matalaa varastotilaa, toimistohuoneita, keittiö ja pieni kylpyhuone. Lisäksi runsaasti lisätilaa parvella.
Tilat eivät sovellu autokorjaamoksi tai autopesulaksi.
Halli on pinta-alaltaan noin 210 m² ja sen varusteluun kuuluu iso nosto-ovi, lattiakaivo ja kaksi erillistä käyntiovea. Korkeaa varastotilaa nyt noin 45 m² ja matalaa hallitilaa runsaasti kahdessa tasossa. Useita toimistohuoneita, keittiö ja wc-tila suihkulla.
Tiloissa on sähkölämmitys. Lämmitys on toteutettu pääosin ilmalämpöpumpulla. Tilassa on tilakohtainen vesimittaus ja oma sähkösopimus.
Rakennuksen piha on asfaltoitu ja siinä on pysäköintitilaa usealle autolla. Hyvä sijainti lähellä moottoritietä. Kaikki Tarmolan kaupanpalvelut lähellä.
Hyvin varustellut tilat myynnissä tai vuokrattavana!
Kohdetiedot
Sijainti
Katuosoite: Puusepänkaarre 10, 06150 Porvoo
Kaupunginosa: Kaupunginhaka
Ympäristö: Teollisuusalue
Tontti
Omistus: Oma
Pinta-ala: 1500 m²
Rakennus/huoneisto
Pinta-ala: Noin 210 m²
Kiinteistötyyppi: Varasto/tuotantorakennus
Rakennusvuosi: 2008
Energiatodistus: Ei lain vaatimaa todistusta
Huoneistotyyppi: Varasto- ja tuotantotila
Kunto, varusteet ja palvelut: Toimistohuoneita, nosto-ovi käyntiovella, lattiakaivo, wc ja suihku
Lämmitys: Sähkölämmitys (ilmalämpöpumppu ja patterit)
Vapautuminen: Heti vapaa
Myyntihinta ja kulut
Velaton hinta: 199’800 €
Hoitovastike: Noin 70 €/kk
Sähkö- ja vesimaksu: Mittauksen mukaan
Vuokrahinta ja kulut
Kuukausivuokra: 1190 €/kk, alv-vapaa
Sähkö- ja vesimaksu: Mittauksen/kulutuksen mukaan
Lämmitys: Ilmalämpöpumpulla ja pattereilla
Jätehuolto: Vuokralainen vastaa kuluista ja järjestelyistä
Auraus: vuokralainen vastaa tilan edustan lumen luonnista
Muuta: Minimisopimuskausi 12 kk, vakuus 3 kk:n vuokraa vastaava summa ja luottotietojen oltava kunnossa

Kohteen ominaisuudet
-
Asfaltoitu piha
-
Keittiö
-
Lattiakaivo
-
Nosto-ovi
-
Parkkipaikat
-
Suihku
-
Toimistotila
-
Vesipiste
-
Voimavirta
-
WC
