
Toimistohuoneita Kaupunginhaka Porvoo
alk. 269 €/kk, alv-vapaa | 15 m² + 17,5 m² | Höylänlastu 1, Porvoo

Kohdetta välittää
KTM, LKV Antti Soivio
- 0400 446553
- [javascript protected email address]

Vuokrattavana siistejä toimistohuoneita Kaupunginhaassa!
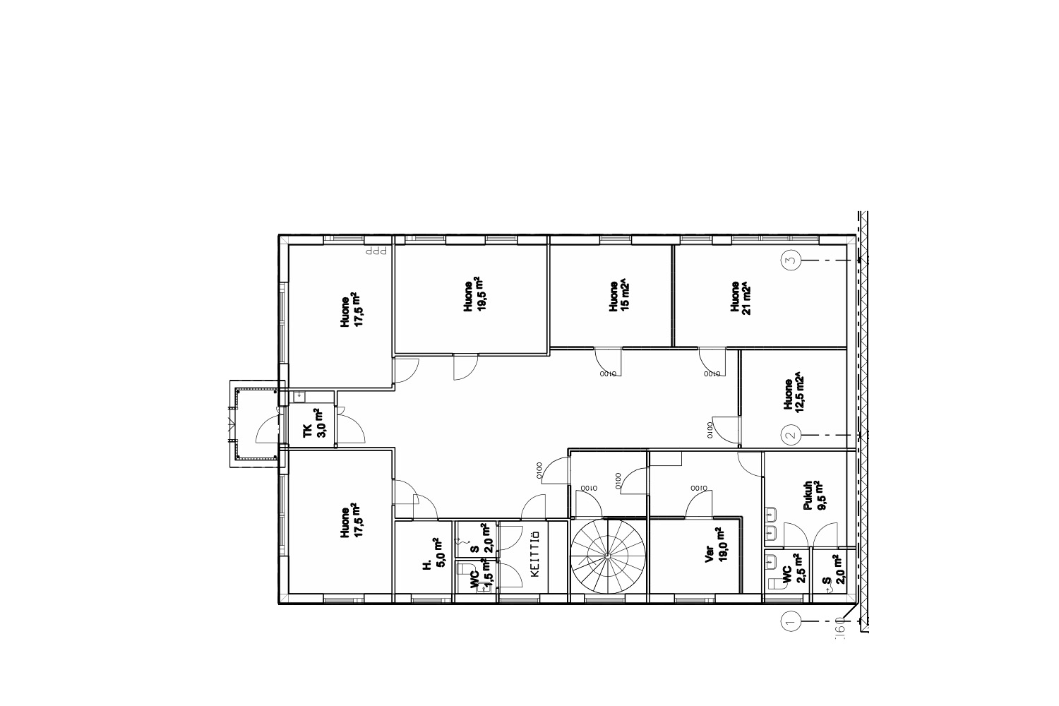
Nyt vuokrattavana erittäin hyväkuntoisia toimistohuoneita Porvoon Kaupunginhaan yritysalueella. Rakennuksessa on seitsemän keskenään erikokoista toimistohuonetta. Tällä hetkellä vapaana olevien huoneiden koot ovat noin 15 m² ja 17,5 m². Kaikissa huoneissa on ikkuna, mikä tekee tiloista valoisat.
Toimistohuoneiden lisäksi rakennuksessa on tyylikäs, pieni keittiö, kaksi wc:tä, pukutila ja suihku sekä heti sisääntulosta aukeava, avara aula. Nämä tilat ovat vuokralaisten yhteiskäytössä.
Toimistorakennus sijaitsee rinteeseen tehdyn rakennuksen toisessa kerroksessa, mutta kulku tiloihin on katutasosta muutaman porrasaskelman verran. Rakennukseen on lisäksi toinen, esteetön sisäänkäynti. Rakennuksen edessä on vain muutama parkkipaikka, mutta alapihalla on hyvin pysäköintitilaa.
Kaupunginhaka on kasvava yritysalue Tarmolan vieressä. Nopea ja sujuva yhteys Porvoon moottoritielle!
Hyvät toimistotilat monenlaisille yrityksille!
Kohdetiedot
Sijainti
Katuosoite: Höylänlastu 1, 06150 Porvoo
Kaupunginosa: Kaupunginhaka
Ympäristö: Teollisuusalue
Rakennus/huoneisto
Pinta-alat: Noin 15 m² ja 17,5 m²
Kiinteistötyyppi: Toimisto- ja tuotantorakennus
Rakennusvuosi: 1990
Energiatodistus: Ei lain edellyttämää energiatodistusta
Tilatyyppi: Toimistotila
Kunto, varusteet ja palvelut: Hyväkuntoinen, toimistohuoneita, keittiö, suihku, kaksi wc:tä
Pysäköinti: Pihassa
Lämmitys: Kaukolämpö
Vapautuu: Heti vapaa
Vuokrahinta ja kulut
Kuukausivuokra: alk. 269 €/kk, alv-vapaa
Sähkö- ja vesimaksu: Sisältyy vuokraan
Lämmitys: Sisältyy vuokraan
Auraus: Sisältyy vuokraan
Jätehuolto: Sisältyy vuokraan
Muuta: Minimisopimuskausi 12 kk, vakuus 3 kk:n vuokraa vastaava summa, luottotietojen oltava kunnossa

Kohteen ominaisuudet
-
Ilmastointi
-
Keittiö
-
Parkkipaikat
-
Suihku
-
Toimistotila
-
Vesipiste
-
WC
