
Hyvä toimistotila Lassila Helsinki
1'199 €/kk, alv 0% | 143 m² | Kaupintie 11, Helsinki

Kohdetta välittää
KTM, LKV Antti Soivio
- 0400 446553
- [javascript protected email address]

Erinomaisten yhteyksien päässä toimistotilaa vuokrattavana Helsingin Lassilassa!
Helsingin Lassilassa Pohjois- Haagassa vuokrattavana hyväkuntoista ja valoisaa toimistotilaa.
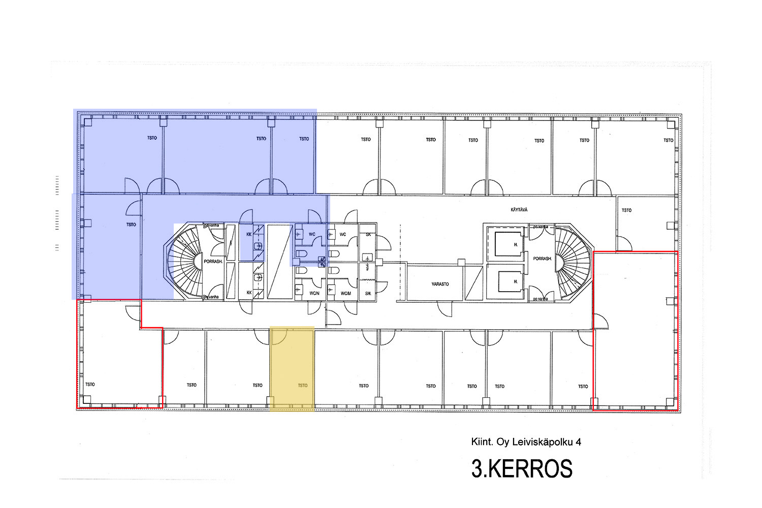
Huone sijaitsee ison toimistorakennuksen tiloissa ja on pinta-alaltaan 143 m² (merkitty pohjaan sinisellä). Huoneisto on rakennuksen kolmannessa kerroksessa ja sisäänkäynti Leiviskäpolun puolelta. Rakennuksessa on hissi. Siisti ja valoisa rappu ja toimistohuoneessa isot ikkunat. Toimistohuoneiden lisäksi tiloissa on myös siisti keittiö ja WC. Siistit pinnat ja hyväkuntoinen tila.
Lämmitys ja vesi sisältyy vuokraan, mutta sähkö maksetaan kulutuksen mukaan ja se laskutetaan 2 kertaa vuodessa.
Tila soveltuu arvonlisäverovapaaseen käyttöön, mutta mikäli toimija on arvonlisäverovelvollinen lisätään vuokran arvonlisävero.
Autopaikkoja on mahdollista vuokrata rakennuksen parkkihallista hintaan 90 €/kk ja pihapaikkoja on myös 50 €/kk.
Loistavat liikenneyhteydet, kaikki julkisen liikenteen pysäkit löytyvät kävelyetäisyydeltä, mm. Pohjois-Haagan juna-asema.
Toimistohuoneisto loistavien yhteyksien päässä!
Kohdetiedot
Sijainti
Katuosoite: Kaupintie 11, 00440 Helsinki
Kaupunginosa: Lassila
Ympäristö: Lassilan yritys- ja toimistotaloja
Rakennus/huoneisto
Pinta-alat: noin 143 m²
Rakennustyyppi: Toimistotalo
Rakennusvuosi:1986
Energiatodistus: Ei lain vaatimaa toditusta
Huoneistoselitelmä: Toimistohuoneisto
Kunto, varusteet ja palvelut: Hyvä kunto. Eri kokoisia toimistohuoneita, WC ja keittiö
Pysäköinti: Paikoitustilaa parkkihallissa ja pihalla
Vapautuminen: Heti vapaa
Vuokrahinta ja kulut
Kuukausivuokra: 1'199 €/kk, alv 0%
Sähkö: Kulutuksen mukaan (laskutetaan 2 kertaa/vuosi)
Vesimaksu: Sisältyy vuokraan
Lämmitys: Kaukolämpö (sisältyy vuokraan)
Muut kulut: Minimisopimuskausi 12kk, vakuus 3kk vuokraa vastaava summa ja luottotietojen oltava kunnossa

Kohteen ominaisuudet
-
Asfaltoitu piha
-
Keittiö
-
Parkkipaikat
-
Toimistotila
-
Vesipiste
-
WC
