
Liiketila Kuninkaanportti Porvoo
7'420 €/kk + alv | 742 m² | Ruiskumestarinkatu 8, Porvoo

Kohdetta välittää
KTM, LKV Antti Soivio
- 0400 446553
- [javascript protected email address]

Vuokrataan tilava ja valoisa liiketila Kuninkaanportissa!
Nyt vuokrattavana avara ja hyväkuntoinen liiketila Kuninkaanportin kaupan alueella. Tila sijaitsee näkyvällä paikalla myymälärakennuksen kadunpuoleisessa päädyssä.
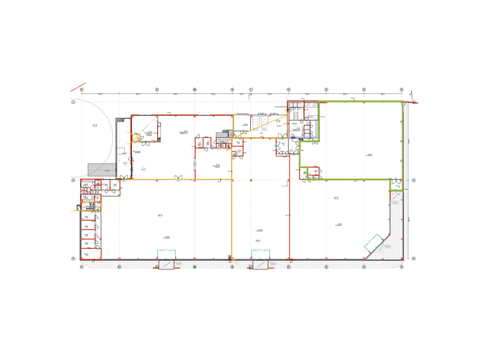
742 m²:n myymälätilaan sisältyy yhdistetty keittiönurkkaus ja toimistohuone, wc ja tuulikaappi. Tila on merkitty pohjakuvaan vihreällä värillä. Isot ikkunat tekevät tilasta valoisan. Rakennuksen ulkoseinään (pohjoispuolelle) mahdollisuus asennuttaa nosto-ovi. Tarvittavista muutostöistä sovittava erikseen.
Vuokralaisella on ilman erillistä korvausta käytössään liiketilan edustalla olevat parkkipaikat sekä oikeus käyttää työntekijöille varattuja autojen sähkölämmitystolppia. Vuokraan sisältyvät kiinteistön tavanomaiset hoito- ja ylläpitokulut.
Rakennus sijaitsee aivan moottoritien varressa. Vuokralaisella on vuosittaista korvausta vastaan käytössään mainospaikka moottoritien viereisessä, yhteisessä mainostolpassa.
Erinomainen myymälätila näkyvällä paikalla!
Kohdetiedot
Sijainti
Katuosoite: Ruiskumestarinkatu 8, 06450 Porvoo
Kaupunginosa: Kuninkaanportti
Ympäristö: Kaupan alue, myymälärakennuksia
Rakennus
Pinta-alat: 742 m²
Kiinteistötyyppi: Liikerakennus
Tilatyyppi: Liiketila
Kunto, varusteet ja palvelut: Hyvä kunto, liiketila, tuulikaappi, keittiönurkkaus/toimisto, wc
Pysäköinti: Pihassa
Lämmitys: Kaukolämpö
Vesi ja viemäri: On
Vapautuu: 1.7.26
Vuokrahinta ja kulut
Kuukausivuokra: 7'420 €/kk + alv
Sähkö- ja vesimaksu: Oma sähkösopimus ja vesi kulutuksen mukaan
Lämmitys: Sisältyy vuokraan
Auraus: Sisältyy vuokraan
Jätehuolto: Sisältyy vuokraan
Muuta: Vakuus 3 kk:n vuokraa vastaava summa, minimisopimus 12 kk, luottotietojen on oltava kunnossa

Kohteen ominaisuudet
-
Asfaltoitu piha
-
Ilmastointi
-
Keittiö
-
Parkkipaikat
-
Toimistotila
-
Vesipiste
-
WC
