
Asuntosijoituskohde Nummenkylä Järvenpää
998’000 € | Noin 680 m² | Ruukkukatu 17, Järvenpää

Kohdetta välittää
KTM, LKV Antti Soivio
- 0400 446553
- [javascript protected email address]

Myydään asuntosijoituskohde Järvenpäässä!
Järvenpään Nummenkylän alueella myynnissä kaksi paritaloa.
Kohde myydään vuokrattuna.
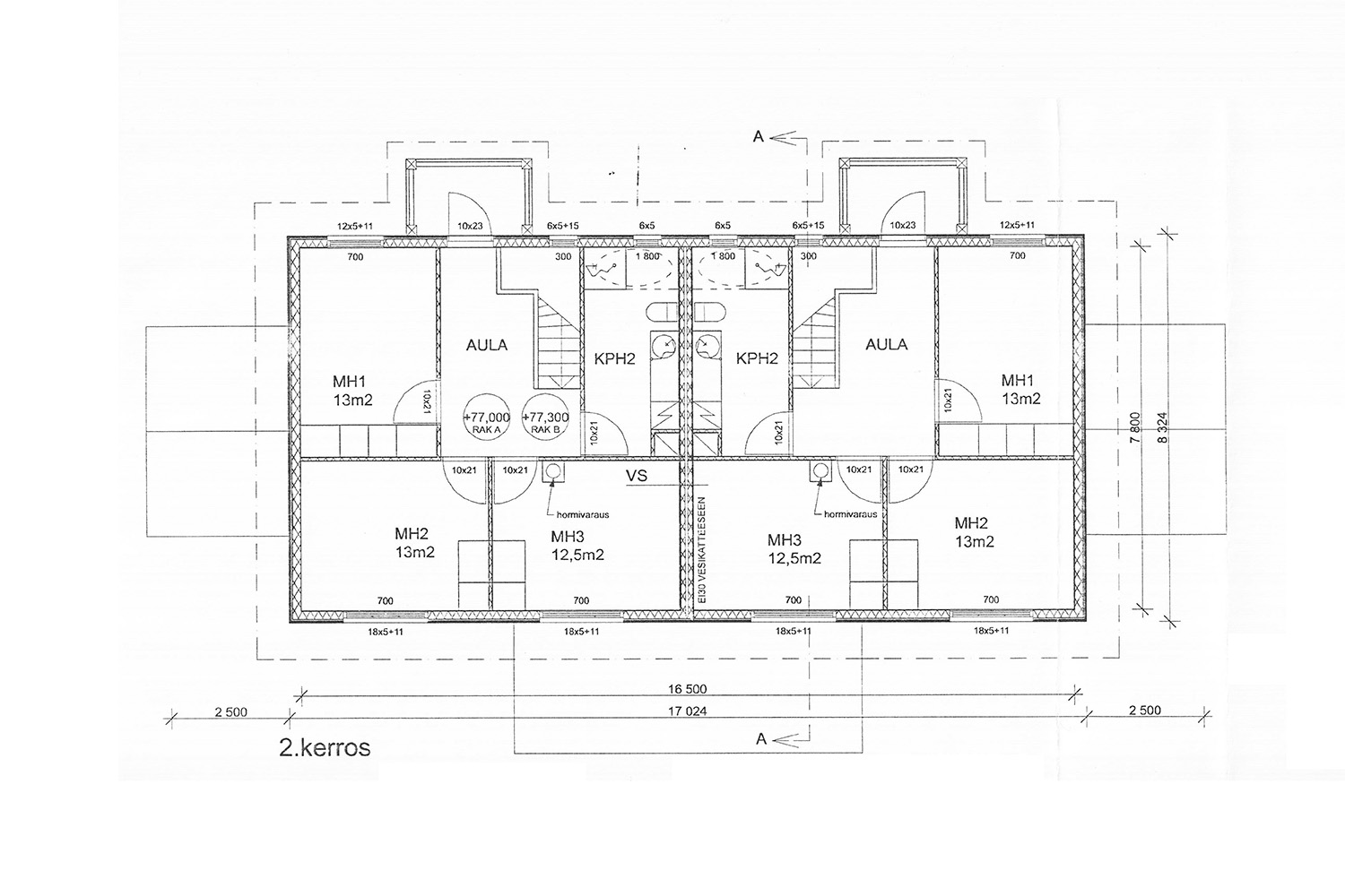
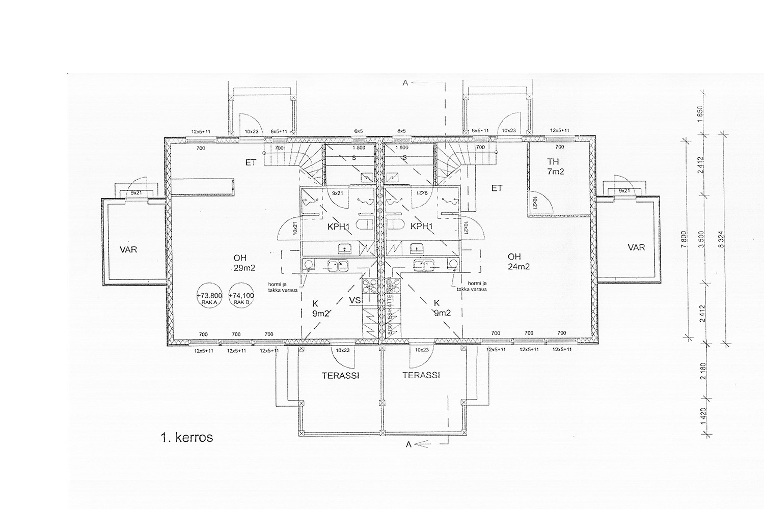
Yhtiön neljä asuinhuoneistoa muodostuvat kahdesta (2) paritalosta. Yhden huoneiston pinta-ala on 122 m² ja niiden hallintaan kuuluu 8 m² varastotilat sekä autokatospaikka pinta-alaltaan 20 m². Jokaisen asuinhuoneiston hallintaan kuuluu autokatospaikan lisäksi yksi autopistokepaikka. Asunnot ovat kahdessa tasossa ja niissä on 4–5 huonetta, keittiö, WC ja suihkutilat. Kaikissa asunnoissa on lisäksi sauna ja viihtyisä oma terassi. Huoneistossa on koneellinen ilmanvaihto ja sähkölämmitys.
Järvenpään Nummenkylä on rauhallista asuinaluetta ja lähellä on erinomaiset ulkoilureitit. Läheltä löytyy myös päiväkoti ja lähimmät ala-asteen koulut ovat Anttilan ja Saunakallion koulut, lähin yläaste on Koivusaaren koulu. Lukio löytyy noin kolmen kilometrin päätä Pajalasta. Hyvä yhteys bussilla (pysäkki lähellä) esim. Järvenpään keskustaan (5 kilometriä).
Hyvällä sijainnilla vakaa ja varmatuottoinen asuntosijoituskohde Järvenpäässä!
Kohdetiedot
Sijainti
Katuosoite: Ruukkukatu 17, 04460 Järvenpää
Kaupunginosa: Nummenkylä
Ympäristö: Asuinalue
Tontti
Pinta-ala: 1684 m²
Omistusmuoto: Oma tontti
Rakennus/huoneisto
Pinta-alat: Noin 680 m²
Rakennustyyppi: Paritalo
Rakennusvuosi: 2007
Energiatodistus: E
Huoneistotyyppi/Käyttötarkoitus: Neljä asuinhuoneistoa
Kunto, varusteet ja palvelut: 4-5 huonetta, keittiö, wc, suihku, sauna ja terassi. Lisäksi kuuluu varastotila ja autokatospaikka
Lämmitys: Suora sähkölämmitys
Pysäköinti: 4 autopaikkaa
Vapautuu: Myydään vuokrattuna
Myyntihinta ja kulut sekä tulot
Myyntihinta: 898’000 € (tarkistetaan kaupantekohetkellä)
Velkaosuus: 100’000 € (tarkistetaan kaupantekohetkellä)
Velaton hinta: 998’000 €
Hoitovastike: 22’224 €/v
Rahoitusvastike: 21’667,2 €/v
Kiinteistövero: 2300,00 (vuonna 2021)
Sähkö- ja vesimaksu: Mittauksen mukaan (sähkölle oma sähkösopimus)
Vuokratulo: 64’200 € /v
Nettotuotto%: Noin 4,2 %

Kohteen ominaisuudet
-
Asfaltoitu piha
-
Ilmalämpöpumppu
-
Keittiö
-
Parkkipaikat
-
Sauna
-
Suihku
-
Vesipiste
-
WC
