
Kaksi liikehuoneistoa Kevätkumpu Porvoo
Tarjousten perusteella | Noin 128 m² + 379 m² | Sammontie 1, Porvoo

Kohdetta välittää
KTM, LKV Antti Soivio
- 0400 446553
- [javascript protected email address]

Myydään liike- /toimistotilaa Kevätkummun palvelukeskuksesta!
Myydään tarjousten perusteella kaksi liike-/toimistotilaa Kevätkummun palvelukeskuksesta Porvoossa. Samassa keskuksessa toimii S-Market, apteekki, parturi, moskeija, kamppailukeskus ja pizzeria.
Tilat sijaitsevat sekä toisessa kerroksessa että katutasossa. Kaikissa tiloissa on isot ikkunat ja esteetön kulku tiloihin (toiseen kerrokseen on henkilöhissi).
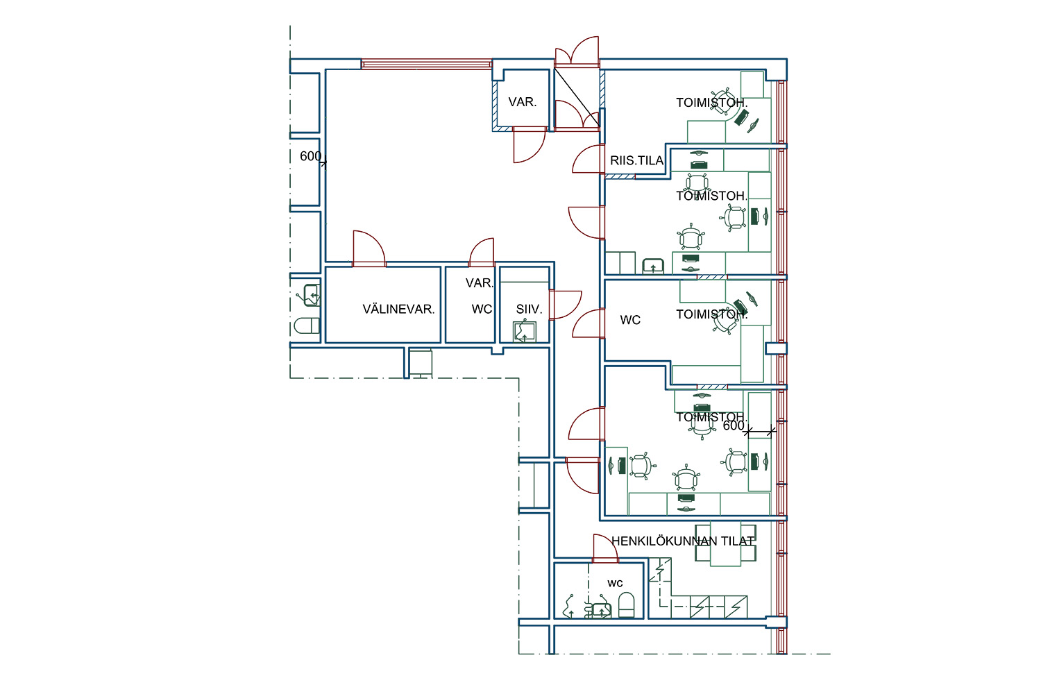
Yläkerran huoneisto (huoneisto nro 13) on pinta-alaltaan 379 m² ja sen tällä hetkellä jaettuna kahdelle käyttäjälle kevyin väliseinin (katso tarkemmin pohjakuva). Huoneistossa on yhteinen eteisaulatila, kaksi WC ja suihku. Lisäksi huoneistossa on (vain toisen tilan käytössä) keittiö ja vielä yksi WC. Yläkerrasta ikkunanäkymä etupihalle.
Alakerran huoneisto (huoneisto nro 10) 0n pinta-alaltaan 128 m² ja siellä on kolme toimistohuonetta, keittiö, WC, suihku ja erillinen siivouskomero sekä muutama pieni varastohuone. Alakerran tilaan on oma sisäänkäynti etupihan kävelykadulta sekä ikkunanäkymä takapihalle ja kävelykadulle.
Liikehuoneistot voidaan myydä yhdessä tai erikseen. Ostaja teettää kustannuksellaan tarvittavat kuntoon liittyvät tarkistukset.
Yhtiö ei ole hakeutunut arvonlisäverovelvolliseksi huoneistojen osalta, joten tilat soveltuvat myös arvonlisäverottomaan käyttöön (huoneistojen vuokratuloihin/-hintaan ei lisätä arvonlisäveroa eikä niiden käyttö vaadi arvonlisäverovelvollista käyttäjää/käyttöä).
Lämmitysmuotona kaukolämpö sekä koneellinen ilmanvaihto (tulo- ja poistoilma) osittaisella lämmöntalteenotolla. Tiloissa vesikiertoinen patterilämmitys, ilmalämmitys, lämpimän käyttöveden kiertojohto.
Palvelukeskuksella on runsaasti omia parkkipaikkoja.
Tilat myydään tarjousten perusteella. Myyjä pidättää oikeuden hyväksyä tai hylätä tarjouksen.
Monien mahdollisuuksien toimitilat – tarjoa jo tänään!
Kohdetiedot
Sijainti
Osoite: Sammontie 1, 06150 Porvoo
Kaupunginosa: Kevätkumpu
Ympäristö: Asuinaluetta
Tontti
Pinta-ala: 10’695 m²
Omistus: Oma
Kiinteistörekisteri: 638-12-901-1
Rakennus/huoneisto
Pinta-ala: Noin 128 m² + 379 m² (ei tarkastusmitattu)
Kiinteistötyyppi: Liikerakennus
Rakennusvuosi: 1979
Tilatyyppi: Liikehuoneisto
Kunto, varusteet ja palvelut: Peruskuntoinen tila. Keittiö, WC, suihku, henkilöhissi, toimistohuoneita, varastohuoneita, siivouskomero
Energiatodistus: E
Hissi: Henkilöhissi on
Lämmitys: Kaukolämpö
Vapautuu: Tilat osittain vuokrattuna
Myyntihinta ja kulut ja tulot
Velaton myyntihinta: Myydään tarjousten perusteella
Velkaosuus huoneisto 13: 7’453,62 € (11/2025)
Velkaosuus huoneisto 10: 2’517,19 € (11/2025)
Hoitovastike huoneisto 13: 2’615,10 €/kk
Hoitovastike huoneisto 10: 883,20 €/kk
Rahoitusvastike 13: 242,56 €/kk
Rahoitusvastike 10: 81,92 €/kk
Vesimaksut: 22,6 €/kk/huoneisto
Lämmitys: Sisältyy vastikkeeseen
Vuokratulot: 1’684,5 €/kk

Kohteen ominaisuudet
-
Asfaltoitu piha
-
Henkilöhissi
-
Keittiö
-
Parkkipaikat
-
Suihku
-
Toimistotila
-
Vesipiste
-
WC
