
Hyvä toimistotila Tapanila Helsinki
399 €/kk, alv-vapaa | 30 m² | Halmetie 7, Helsinki

Kohdetta välittää
KTM, LKV Antti Soivio
- 0400 446553
- [javascript protected email address]

Toimistotila Tapanilassa moneen käyttöön!
Peruskorjattu toimistotila vuokrattavissa Tapanilasta. Tila voidaan vuokrata myös yksityishenkilöille eli vuokra on arvonlisäverovapaa.
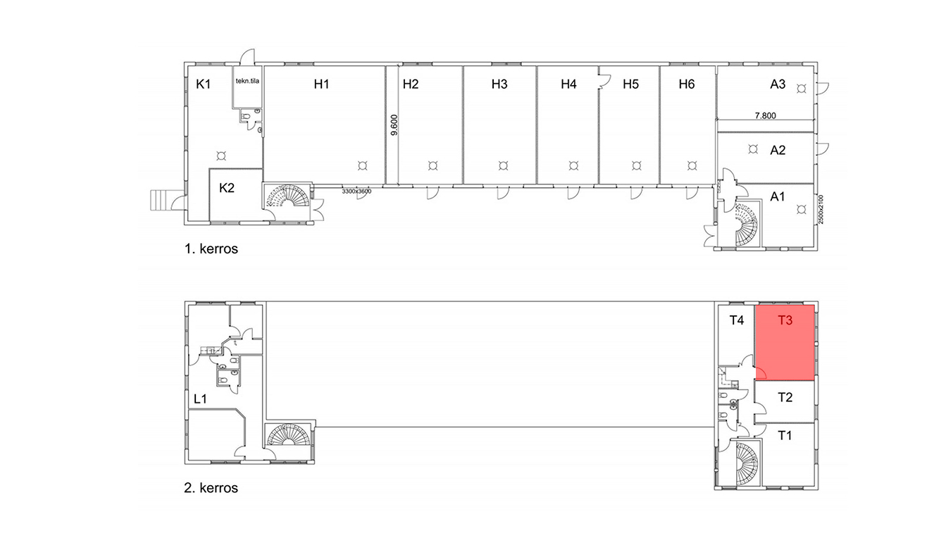
Tila sijaitsee rakennuksen toisessa kerroksessa. Huone ovat valoisia ja avara. Toimisto on pohjakuvassa merkittynä numero- ja kirjainyhdistelmällä T3. Tiloissa on yhteiset keittiö ja wc-tilat.
Hyvä toimisto vuokrattavana!
Kohdetiedot
Sijainti
Katuosoite: Halmetie 7, 00730 Helsinki
Kaupunginosa: Tapanila
Ympäristö: Teollisuus- ja asuinaluetta
Tontti
Pinta-ala: 1’527 m²
Omistusmuoto: Vuokratontti (sopimus voimassa 31.12.2040 asti)
Kiinteistötunnus: 91-39-124-16
Rakennus/huoneisto
Pinta-ala: Noin 30 m²
Rakennustyyppi: Hallirakennus
Rakennusvuosi: 1989
Huoneistoselitelmä: Toimistotila
Hissi: Ei
Kerros: 2/2
Lämmitys: Ilmakeskuslämmitys
Kunto, varusteet ja palvelut: Uudenveroiset, peruskorjatut tilat
Energiatodistus: Ei lain edellyttämää todistusta
Vapautuu: Heti vapaa
Pysäköinti: Pihalla
Vuokrahinta ja kulut
Kuukausivuokra: 399 €/kk, alv-vapaa
Sähkö- ja vesimaksu: Mittauksen mukaan
Lämmitys: Sisältyy vuokraan
Muuta: Vakuus 3kk vuokraa vastaava summa, minimisopimus 12kk ja luottotietojen on oltava kunnossa

Kohteen ominaisuudet
-
Asfaltoitu piha
-
Ilmalämpöpumppu
-
Keittiö
-
Parkkipaikat
-
Toimistotila
-
WC
