
Hyvä päätyhallitila Malmi Helsinki
129’800 € | 165 m² | Ormuspellontie 16, Helsinki

Kohdetta välittää
KTM, LKV Antti Soivio
- 0400 446553
- [javascript protected email address]

Myydään teollisuus- ja varastohalli Malmilla moneen käyttöön!
Helsingin Malmilla myynnissä hyväkuntoinen sekä hyvin varusteltu hallitila.
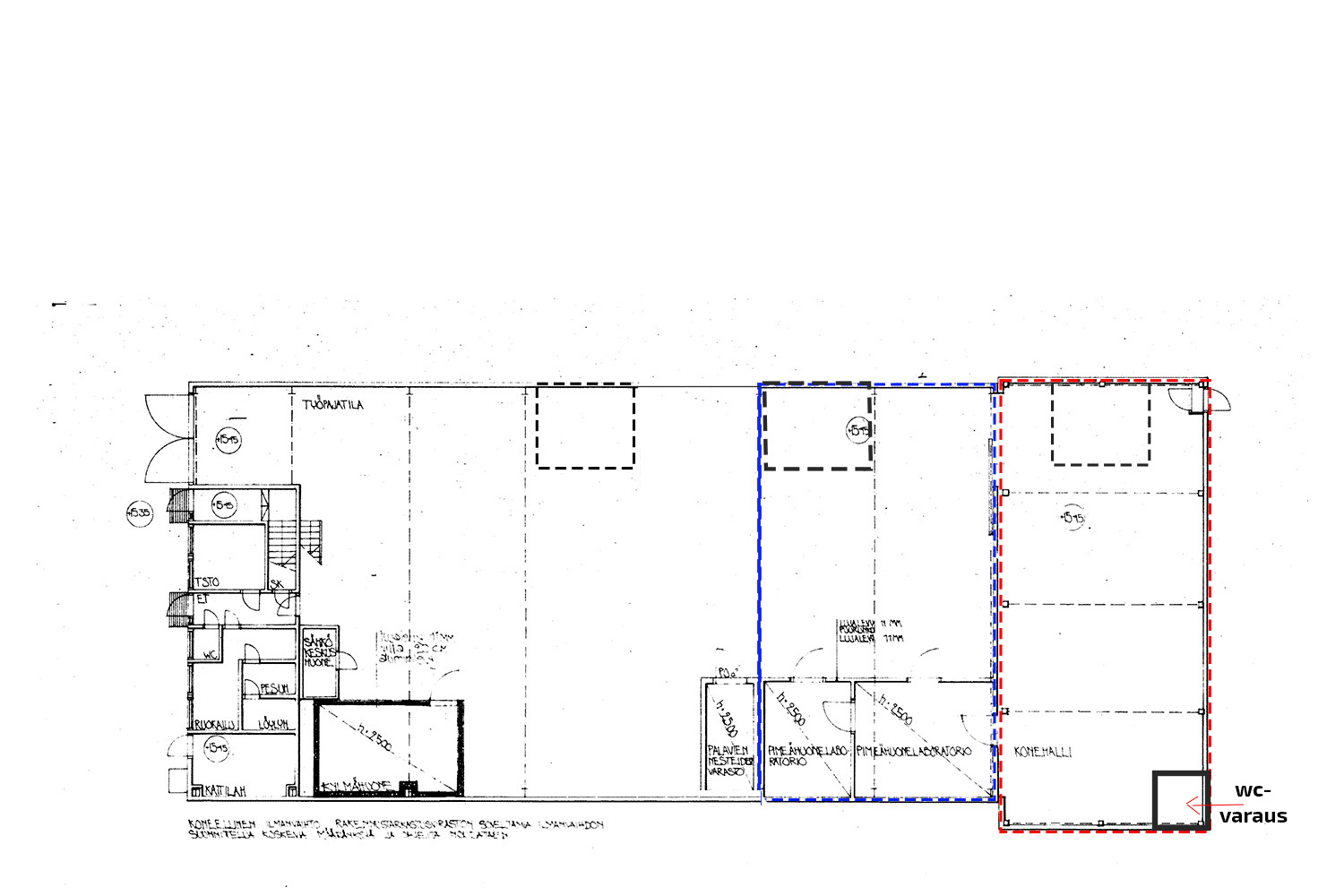
Tila on hallirakennuksen päätytila (yhteensä 3 tilan hallirakennus). Myytävä tila, halli C, on pinta-alaltaan 165 m² ja siellä on pieni lisäsäilytysparvi pinta-alaltaan noin 13 m². Korkeus hallissa vaihtelee 4,9–6,3 metriä. Varusteluun kuuluu nosto-ovi (L3,65 m x K3,15 m) erillisellä käyntiovella, vesipiste ja voimavirta sekä koko hallin mittainen lattiakaivo hiekan ja öljyn erotuksella. Hallin etuosassa on lisäksi WC-varaus. Rakennuksessa koneellinen poistoilmanvaihto ja kantava betonilattia.
Optio ostaa myös viereinen hallitila (B tila), joka on pinta-alaltaan noin 175 m² + säilytysparvi noin 50 m². Tilan B vapautumisesta sovittava erikseen. Kaksi viimeistä kuvaa kuvakarusellissa B-tilasta.
Rakennuksessa on kaukolämpö. Tilassa on tilakohtainen vesimittaus ja oma sähkösopimus. Vastike sisältää lämmityksen, sähkön, veden, aurauksen, tonttivuokran, kiinteistövakuutuksen.
Piha on asfaltoitu ja siinä on pysäköintitilaa usealle autolla. Hyvä sijainti lähellä moottoritietä. Läheltä löytyy mm. Malmin kaikki kaupanpalvelut ja Tattarisuon teollisuusalue.
Hyvin varustellut tilat myynnissä hyvällä sijainnilla!
Kohdetiedot
Sijainti
Katuosoite: Ormuspellontie 16, 00700 Helsinki
Kaupunginosa: Malmi
Ympäristö: Teollisuusalue
Tontti
Omistus: Helsingin kaupungin vuokratontti (Sopimus muuttumattomana 31.12.2047 asti).
Pinta-ala: 2100 m²
Rakennus/huoneisto
Pinta-ala: Noin 165 m²
Kiinteistötyyppi: Teollisuusrakennus
Rakennusvuosi: 1976
Energiatodistus: Laki ei edellytä todistusta
Huoneistotyyppi: Varasto- ja tuotantotila
Kunto, varusteet ja palvelut: Nosto-ovi käyntiovella, vesipiste, voimavirta, lattiakaivo, wc-varaus
Lämmitys: Kaukolämpö
Vapautuminen: Heti vapaa
Myyntihinta ja kulut
Velaton hinta: 129’800 €
Hoitovastike: 4,5 €/m²/kk
Sähkö- ja vesimaksu: Mittauksen mukaan
Lämmitys: Sisältyy vastikkeeseen
Tonttivuokra: Sisältyy vastikkeeseen
Auraus: Sisältyy vastikkeeseen
Vakuutus: Sisältyy vastikkeeseen

Kohteen ominaisuudet
-
Lattiakaivo
-
Nosto-ovi
-
Parkkipaikat
-
Parvi
-
Vesipiste
-
Voimavirta
-
WC-varaus
