
Iso toimistotila Keskusta Porvoo
11,90 €/m²/kk + alv | n. 366 m² | Mannerheiminkatu 7, Porvoo

Kohdetta välittää
KTM, LKV Antti Soivio
- 0400 446553
- [javascript protected email address]

Keskeisellä sijainnilla Porvoon keskustassa toisen kerroksen toimistotila!
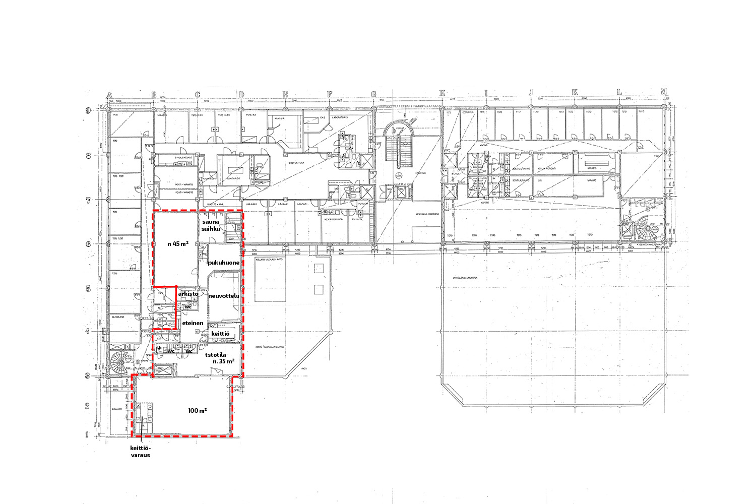
Iso toimistohuoneisto keskeisellä sijainnilla vuokrattavana. Tila soveltuu monenlaisille yrityksille ja on muunneltavissa tarpeiden mukaan. Rauhallinen sijainti toisessa kerroksessa. Ikkunoista näkymät Mannerheiminkadun suuntaan.
Läpitalon huoneistossa on sekä avointa tilaa, että pienempiä tiloja, useampi wc sekä erillinen eteinen/aulatila neuvotteluhuone, suihku- ja saunatilat sekä yksi keittiö. Isoimman avoimen tilan yhteydessä on lisäksi keittiövaraus ja siihen saa tarvittaessa asennettua pienen minikeittiön. Huoneistoon on asennettu valokuitu ja muutama ilmalämpöpumppu. Sisäänkäynti Mannerheiminkadun puoleisesta kulmauksesta. Portaikossa on iso hissi (16 hlö). Samassa talossa mm. Reim-isännöinti, Coronaria, Itä-uudenmaan hyvinvointipalvelut, Tanssiva Porvoo, Fitness24Seven, tilitoimistoja.. liity joukkoon!
Huoneisto mahdollista jakaa kahdelle käyttäjälle (tilaan on useampi sisäänkäynti rappukäytävästä). Mikäli uusi vuokralainen haluaa tilaan pintaremonttia tai muutostöitä on kaikesta sovittava erikseen.
Paikoitusta on niukasti jäljellä parkkihallista, mutta varaustilanne elää ja sitä kannattaa tarvittaessa tiedustella.
Keskustan kaikki palvelut aivan vieressä ja tilaan on esteetön kulku.
Keskeisen sijainnin toimistotila vuokrattavana!
Kohdetiedot
Sijainti
Katuosoite: Mannerheiminkatu 7, 06100 Porvoo
Kaupunginosa: Keskusta
Huoneisto
Pinta-alat: n. 366 m²
Kiinteistötyyppi: Liikerakennus
Rakennusvuosi: 1988
Tilatyyppi: Toimistotila
Energiatodistus: Ei lain edellyttämää todistusta
Kunto, varusteet ja palvelut: Hyvä kunto, avointa tilaa, neuvottelu/kokoushuone, keittiö ja toinen keittiövaraus, useampi wc ja suihku- ja saunatilat pukuhuoneineen sekä siivouskomero ja arkistointihuone
Kerros: 2/3 (hissi on)
Lämmitys: Kaukolämpö
Paikoitus: Kadulla maksullinen, parkkihallin vapaat paikat tiedusteltavissa
Vapautuu: Heti
Vuokrahinta ja kulut
Kuukausivuokra: 11,90 €/m²/kk + alv
Sähkö- ja vesimaksu: Sähkö ja vesi kulutuksen mukaan
Lämmitys: Sisältyy vuokraan
Muuta: Vakuus 3kk vuokraa vastaava summa, minimisopimus 12kk ja luottotietojen on oltava kunnossa

Kohteen ominaisuudet
-
Asfaltoitu piha
-
Henkilöhissi
-
Ilmalämpöpumppu
-
Keittiö
-
Sauna
-
Suihku
-
Toimistotila
-
Vesipiste
-
WC
