
Hotellirakennus Zilton Keskusta Loviisa
139'800 € | 2’194 m² | Mariankatu 29, Loviisa

Kohdetta välittää
KTM, LKV Antti Soivio
- 0400 446553
- [javascript protected email address]

Myydään hotellikiinteistö Loviisan keskustassa!
Legendaarinen Zilton, hotellina ja tanssiravintolana Loviisan keskustassa toiminut liikerakennus, on myytävänä. Tunnettu Zilton on toiminut vuosikausia Loviisalaisten perinteisenä tanssiravintolana sekä kohtaamispaikkana, ja tiloissa 60 vuoden ajan ollut hotelliliiketoiminta on nyt päättynyt (2025).
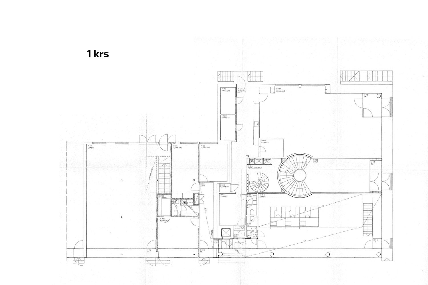
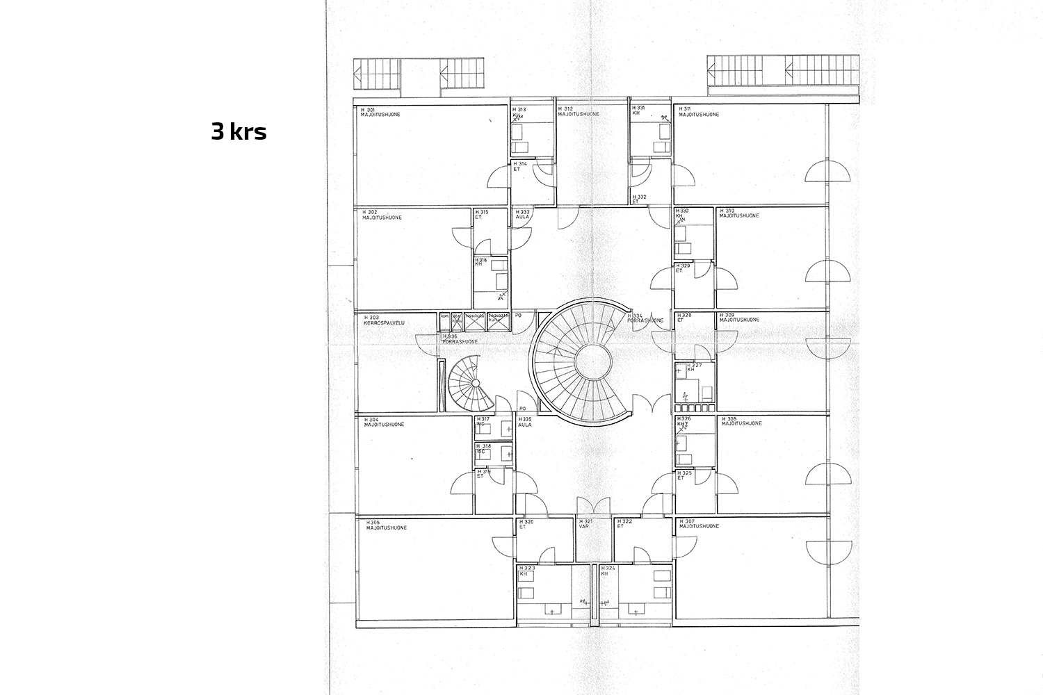
Liikerakennuksessa on yhteensä 5 kerrosta, joista alin kerros on kellarissa sauna ja suihkutiloineen sekä varastotiloineen ja rakennuksen katutasossa on aulatilat sekä baari. Toisessa ja kolmannessa kerroksessa on ravintolatila keittiöineen ja yhteensä 9 hotellihuonetta (2–4 hengen huoneita) wc ja suihkutiloineen, josta 8 kpl kylpyhuonetta remontoitu ja yksi remontoimatta. Ylimmässä kerroksessa on lisäksi ns. SkyLab diskoteekki nimellä toiminut tanssiravintola. Liikerakennuksen toisen kerroksen ravintolatilassa on parhaimmillaan ollut 500 asiakaspaikkaa.
Kunnossapitoselvityksen mukaan kiinteistöön on suunnitteilla huopakatteen pinnoitus ja pohjaviemäreiden sukitus. Muut viemärit ovat pääosin uusittu samoin kuin käyttövesiputket.
Rakennuksessa on kaukolämpö.
Rakennuksesta on vuokrattu liiketilaa ja näissä tiloissa toimii hammaslääkäriasema (70 m²), parturi/kampaamo (95 m²) sekä kahvila (103 m²).
Hotelli Ziltonin historia ylettyy pitkälle. Ravintolatoiminta alkoi nykyisellä paikalla sijainneessa puutalossa Greta Magnussonin toimesta 1965. Ravintolan nimi oli silloin Café Esplanad. Kun uusi rakennus valmistui 1966, ravintoloitsijaksi tuli Zinaida Aladin. Hän antoi paikalle nimen “Zilton”, joka oli humoristinen väännös hänen nimestään ja sanasta Hilton.
Sittemmin toiminta kasvoi ja tiloissa on ravintola- ja hotellitoiminnan lisäksi ollut vuosien aikana monen Loviisalaisen ja lähikunnista saapuvan kohtaamispaikka ja yöelämän keskus. Tanssiravintolan puolella on ollut mm. karaokeiltoja ja live-musiikkia sekä tiloissa on myös järjestetty yksityisjuhlia ja muita tilaisuuksia.
Rakennus sijaitsee keskeisellä sijainnilla keskustassa lähellä Loviisan toria ja satama-aluetta.
Legendaarinen hotellikiinteistö vailla uutta elämää – mitä siellä seuraavaksi nähdään?
Sijainti
Katuosoite: Mariankatu 29, 07900 Loviisa
Kaupunginosa: Keskusta
Ympäristö: Liikkeitä, asuinhuoneistoja, kaikki keskustan palvelut
Tontti
Kiinteistötunnus: 434-3-305-936
Omistus: Oma
Pinta-ala: 1’105 m²
Rakennus/huoneisto
Pinta-ala: 2’194 m²
Kiinteistötyyppi: Hotellikiinteistö/Liikerakennus
Rakennusvuosi: 1966
Energiatodistus: Ei lain vaatimaa todistusta
Hissi: Kyllä (4 hlö)
Kunto, varusteet ja palvelut: Hotellihuoneita, aulabaari, ravintolatila, saunatilat, wc ja suihku, ravintolakeittiö
Pysäköinti: Kadulla
Lämmitys: Kaukolämpö
Vapautuminen: Heti
Myyntihinta, kulut ja tuotot
Velaton myyntihinta: 139’800 €
Kiinteistövero: 2’000 €/v
Vesimaksu: 2’500 €/v
Sähkömaksu: 7’000 €/v
Kiinteistönhuolto: 7’000 €/v
Lämmitys: 25’000 €/v
Vuokratulot: 24’024 /v (alv 0%)

Kohteen ominaisuudet
-
Asfaltoitu piha
-
Henkilöhissi
-
Keittiö
-
Parkkipaikat
-
Sauna
-
Suihku
-
Toimistotila
-
Vesipiste
-
WC
