
Korkea hallitila Ölstens Porvoo
1’490 €/kk + alv | 225 m² | Urakoitsijantie 3, Porvoo

Kohdetta välittää
KTM, LKV Antti Soivio
- 0400 446553
- [javascript protected email address]

Vuokrataan korkea hallitila hyvällä sijainnilla!
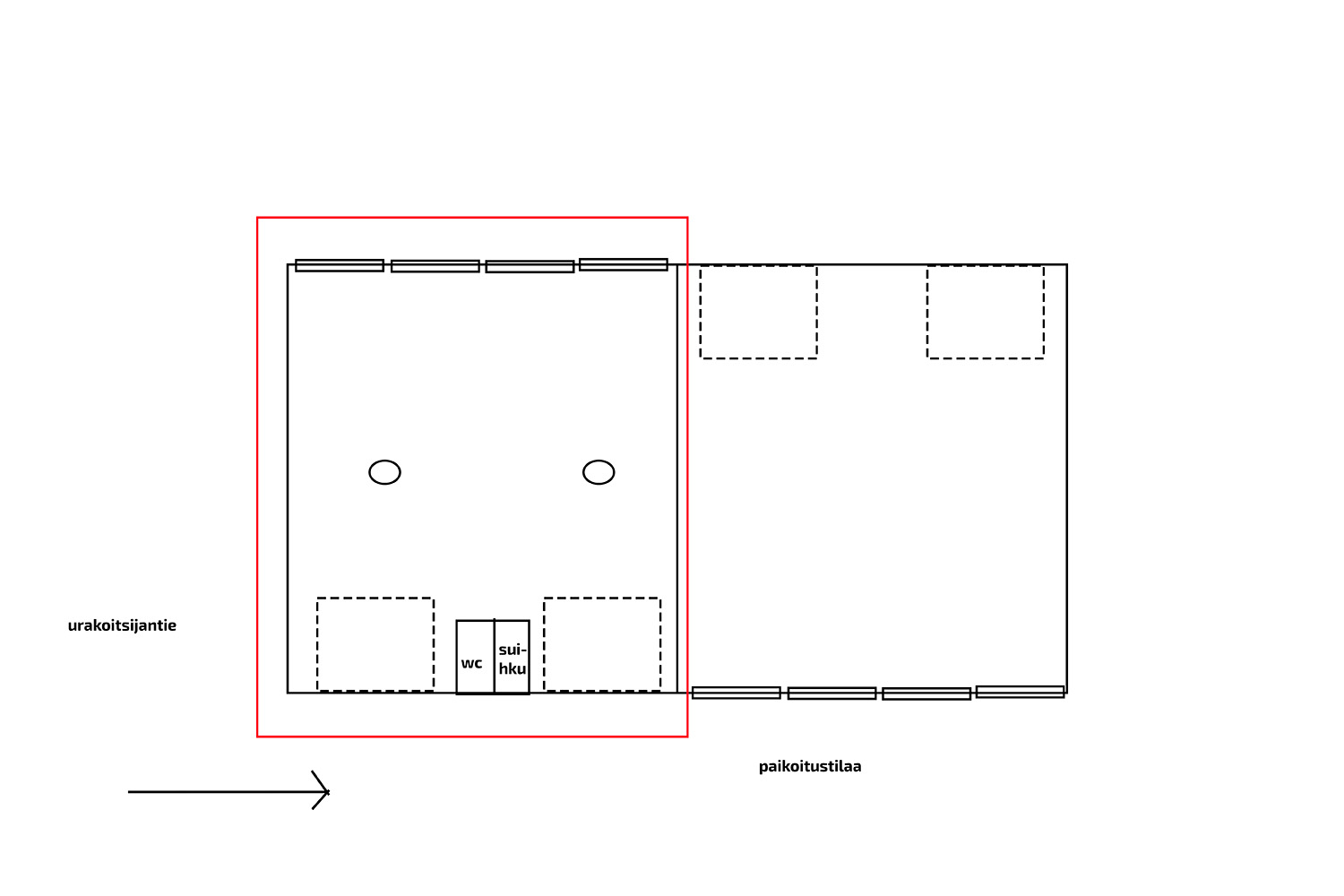
Ölstensin teollisuusalueella on noin 255 m² varasto- ja hallitila vuokrattavana. Hyvä ja selkeä hallitila, joka soveltuu monenlaiseen käyttöön ja varastointiin
Hallitila soveltuu autokorjaamo käyttöön, mutta tilassa ei saa jatkossa pitää autopesulaa.
Syvyys on 14,5 metriä ja leveys noin 17,5 metriä. Tilan hyvään varusteluun kuuluu vesipiste, wc, suihku sekä kaksi lattiakaivoa hiekan ja öljynerotuksella. Halliin on käyntiovelliset paljeovet (L4,0 m x K4,0 m). Vapaa korkeus tilassa 5,3 metriä. Lämmitys sähköllä (ilmalämpöpumppu). Tilassa on painovoimainen ilmanvaihto.
Ölstensin yritysalue sijaitsee muutaman kilometrin päässä Porvoon keskustasta. Alueelta on erinomaiset liikenneyhteydet Porvoon moottoritielle läheisen Treksilän liittymän kautta.
Moneen soveltuva halli moottoritien läheisyydessä!
Kohdetiedot
Sijainti
Katuosoite: Urakoitsijantie 3, 06450 Porvoo
Kaupunginosa: Ölstens
Ympäristö: Teollisuusalue
Rakennus/huoneisto
Pinta-alat: 225 m²
Rakennustyyppi: Teollisuusrakennus
Rakennusvuosi: 2007
Energiatodistus: Laki ei edellytä
Huoneistoselitelmä: Teollisuusvarastohallitila
Kunto, varusteet ja palvelut: Käyntiovelliset paljeovet (2kpl), lattiakaivo hiekan ja öljyn erotuksella, suihku ja wc-tilat
Lämmitys: Sähköllä (ilmalämpöpumppu)
Vapautuminen: 1.6.2026
Vuokrahinta ja kulut
Kuukausivuokra: 1’490 €/kk + alv
Vesimaksu: Mittauksen/taksojen mukaan
Sähkö: Mittauksen mukaan (oma sopimus)
Lämmitys: Sähköllä vuokralaisen lukuun/kustannuksella
Auraus talvella: Vuokralainen vastaa kuluista ja järjestelyistä
Jätehuolto: Vuokralainen vastaa kuluista ja järjestelyistä
Muut ehdot: Minimisopimuskausi 12 kk, vakuus 3 kk:n vuokraa vastaava summa, luottotietojen oltava kunnossa

Kohteen ominaisuudet
-
Ilmalämpöpumppu
-
Lattiakaivo
-
Parkkipaikat
-
Suihku
-
Vesipiste
-
Voimavirta
-
WC
