
Tasokas toimitalo Vartioharju Helsinki
990'000 € | Noin 1’100 m² | Linnanpajantie 1, Helsinki

Kohdetta välittää
KTM, LKV Antti Soivio
- 0400 446553
- [javascript protected email address]

Myydään todella tasokas toimitalo!
Helsingin Vartioharjussa näkyvällä paikalla Itäväylän varressa iso toimitalo myytävänä.
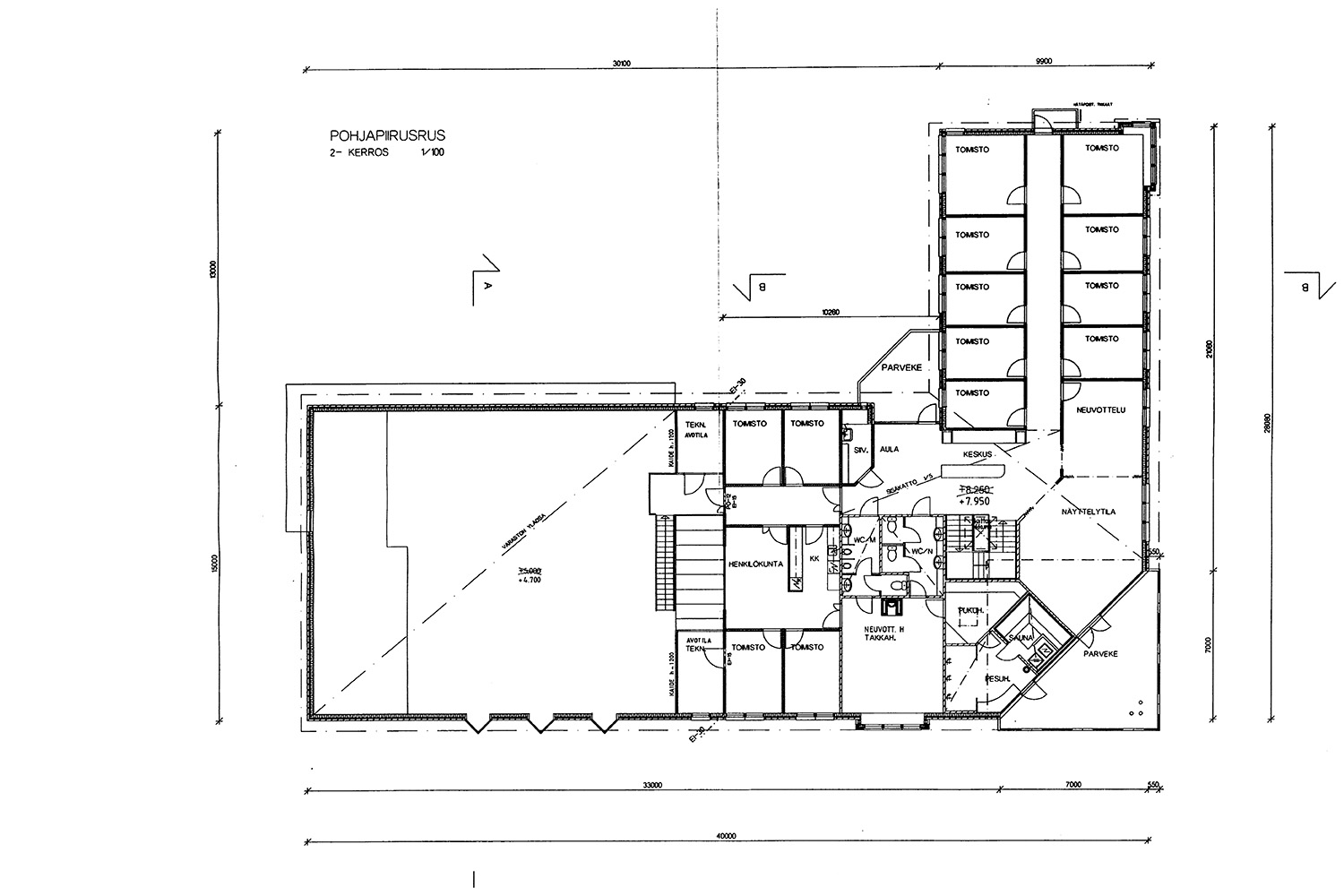
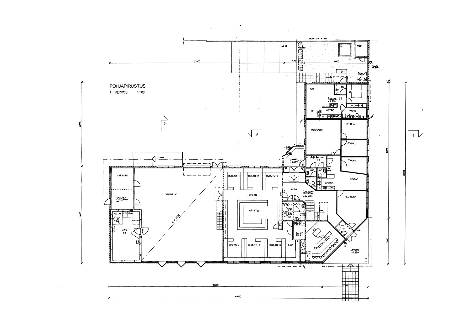
Toimitalon kokonaispinta-ala on noin 1100m². Tiloja rakennuksessa on seuraavasti:
Asunto noin 50m² omalla pienellä pihalla (nyt yhdistetty toimiston lisätilaksi)
Korkeaa hallitilaa noin 200m² + säilytysparvea
Matalaa tuotantotilaa noin 150m² (normaali huonekorkeus)
Alakerran erillinen toimisto- ja koulutustila noin 200m²
Yläkerran toimisto- ja näyttelytilat noin 350m²
Yläkerran saunaosasto noin 50m²
Muuta tilaa noin 100m²
Rakennuksen ylä- ja alakerrassa omat keittiö-, wc- ja sosiaalitilat sekä kaksi parveketta. Toimistotilat ovat hyväkuntoiset ja ilmastoidut.
Asfaltoitu piha-alue, missä runsaasti parkkipaikkoja ja sähköautojen latauspisteitä. Varaston nosto-ovelle pääsee myös isolla kuorma-autolla.
Tilat ovat tällä hetkellä vuokratut ja kohde myydään vuokrattuna. Kysy lisää sijoituskohteen vuokratuotot ja tiedot.
Sijainniltaan erinomaisessa paikassa Itäväylän varrella (hyvä näkyvyys Itäväylän suuntaan), josta Kehä I sekä Kehä III muutamien minuuttien ajomatka. Tilat sijaitsevat myös hyvien julkisten yhteyksien päässä; bussin pysäkki rakennuksen vieressä ja metropysäkki melko lähellä. Rahtiliikennettä ajatellen on Vuosaaren satama-alueelle on noin 10 min ajomatka.
Laadukas toimitalo hyvällä sijainnilla!
Kohdetiedot
Sijainti
Osoite: Linnanpajantie 1, 00950 Helsinki
Kaupunginosa: Vartioharju
Ympäristö: Yrityksiä, paloasema ja asuntoja
Tontti
Pinta-ala: Noin 2’200 m²
Omistusmuoto: Helsingin kaupungin vuokratontti
Rakennus/huoneisto
Pinta-ala: Noin 1’100 m²
Rakennustyyppi: Teollisuus- ja pienteollisuustalot
Rakennusvuosi: 2003
Energiatodistus: Laki ei edellytä todistusta
Huoneistoselitelmä: Varastoa, tuotantotilaa, toimistoa, saunaosasto ja asunto
Kunto, varusteet ja palvelut: Uudenveroisessa kunnossa olevat jäähdytetyt tilat sekä sähköautoille latauspisteitä
Lämmitys: Kaukolämpö
Pysäköinti: Pihassa 29 omaa parkkipaikkaa
Vapautuu: Myydään vuokrattuna
Myyntihinta ja kulut:
Velaton myyntihinta: 990'000 €
Kiinteistövero: 1 221,31€/v
Lämmityskulut: 7200 €/ v (2025)
Tonttivuokra: 15'000 €/ v
Vakuutus: 2'800 €/ v

Kohteen ominaisuudet
-
Asfaltoitu piha
-
Ilmalämpöpumppu
-
Keittiö
-
Lattiakaivo
-
Nosto-ovi
-
Parkkipaikat
-
Sauna
-
Suihku
-
Toimistotila
-
Vesipiste
-
Voimavirta
-
WC
