
Teollisuusvarastorakennus Ölstens Porvoo
1'690'000 € tai 6,9 €/m²/kk + alv | 2 089 m² | Sorvaajantie 6, Porvoo

Kohdetta välittää
KTM, LKV Antti Soivio
- 0400 446553
- [javascript protected email address]

Myydään ja vuokrataan erinomainen tuotanto- ja varastotilarakennus Ölstensin teollisuusalueella!
Laadukkaasti saneerattu ja varusteltu teollisuusrakennus, jossa erilaista hallitilaa, toimistotila sosiaalitiloineen sekä erillinen pesuhalli.
Kiinteistö myydään vuokrattuna ja tilat ovat vuokrattu 1.4.2027 asti.
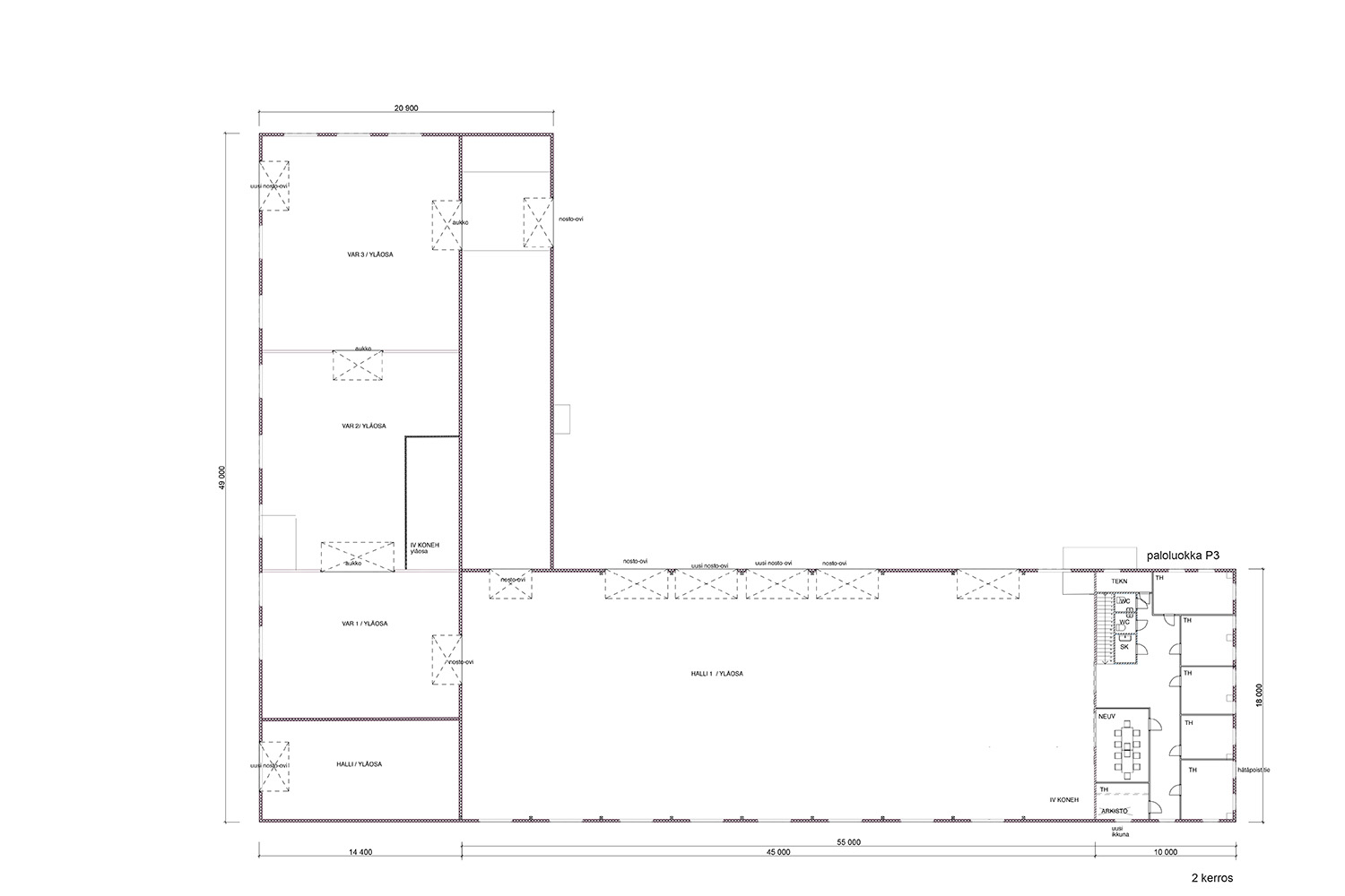
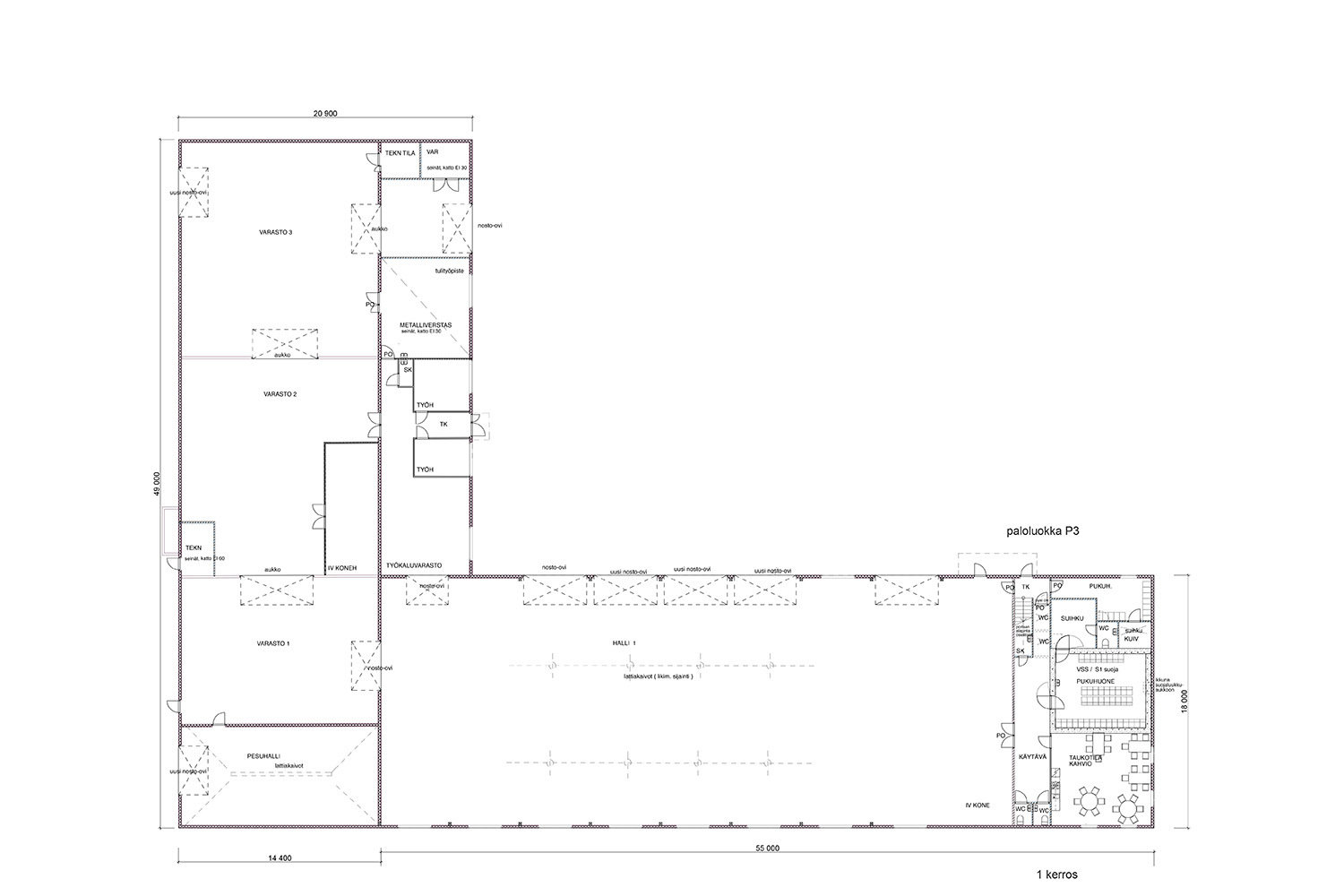
L-mallinen iso ja valoisa teollisuusvarastohalli on yhteensä pinta-alaltaan 2089 m² (kokonaispinta-ala, ei mitattu). Rakennuksen matalampi osio on sisäkorkeudeltaan 4,2 metriä ja sen osuus kokonaispinta-alasta on 1 024,1 m². Varastotilasta mahdollista läpiajoon etupihalta sisäpihalle (nosto-oven korkeus sisäpihan puolella 2,4 m ja etupihan puolella 4,2 m). Matalamman puolen päädyssä hyväkuntoinen pesuhalli, jonka sisäkorkeus noin 5 metriä. Tilava, syvä pesuhalli, jossa pitkä iso lattiakaivo ja voimavirtapistoke. Tilaan on iso sähkökäyttöinen nosto-ovi.
Kiinteistön korkeampi varasto- ja tuotantotilapuoli on pinta-alaltaan noin 810 m² ja siellä on useampi hiekan- ja öljyn erottava lattiakaivo, 4 kpl sähkökäyttöisiä nosto-ovia (K4.2 m x L4.0 m) ja voimavirtaa. Rakennuksessa kantava ja hyväkuntoinen betonilattia ja toisessa päädyssä rakennusta erittäin kantava ja laadukas teräsparvi (noin 100 m² ja kantavuus 500 kg/m²). Hallin sisäkorkeus noin 6 metriä (parven alla 2,5 metriä ja katossa oleviin IV-putkiin korkeus 5,2 metriä).
Rakennuksen päädyssä siistit ja valoisat toimistotilat toisessa kerroksessa pinta-alaltaan noin 180 m². Toimistotiloissa ilmalämpöpumpuilla lauhdutus. Tilassa useampi toimistohuone ja yksi suurempi neuvotteluhuone. Sosiaalitilojen lisäksi toimistotilan alakerrassa on iso pukuhuone, suihkutilat, WC ja varusteiden kuivatushuone.
Rakennuksesta vapautuu tilaa portaittain ja tiloja voidaan vuokrata kahdessa osassa 600 m² (matalampaa tilaa) ja 1400 m² (korkeaa tilaa) jo aikaisemmin kuin 1.4.2027 alkaen.
Iso asfaltoitu piha-alue. Oma tontti, joka muodostuu kahdesta erillisestä tilasta. Pinta-ala pihalla yhteensä 6490 m² ja siellä runsaasti säilytystilaa.
Rakennuksessa lämmitys toimii kaasulla. Ilmastoinnissa lämmöntalteenotto ja toimistotiloissa lauhduttava järjestelmä.
Hyvällä sijainnilla lähellä Porvoon Kruunun yritysaluetta ja nopealla yhteydellä Porvoon moottoritielle.
Todella laadukas ja hyvin varusteltu rakennus, joka soveltuu moneen käyttöön!
Kohdetiedot
Sijainti
Katuosoite: Sorvaajantie 6, 06540 Porvoo
Kaupunginosa: Ölstens
Ympäristö: Teollisuusalue
Tontti
Pinta-ala: Noin 3695 m² + 2800 m²
Omistus: Oma
Rakennus/huoneisto
Pinta-alat: 2089 m² (kokonaispinta-ala, ei mitattu)
Rakennustyyppi: Teollisuusrakennus
Rakennusvuosi: 2016
Huoneistoselitelmä: Teollisuusvarastohalli toimistotilalla ja pesuhallilla
Kunto, varusteet ja palvelut: Nosto-ovia, lattiakaivoja, voimavirtaa, vesipisteitä, toimistotilat, wc, suihku, keittiö, pukuhuoneet
Energiatodistus: Laki ei edellytä todistusta
Lämmitys: Kaukolämpö
Vapautuminen: Sopimuksen mukaan (tilat vuokrattuna 1.4.2027 asti)
Myyntihinta ja kulut ja tuotto
Myyntihinta: 1’690’000 €
Kiinteistövero: 7’260 €
Vuokratuotto: 19’900 €/kk (alv 0 %) (kesään 2027)
Kulut: 10’000 € (kiinteistövero, -vakuutus ja piha-alueiden hoito)
Vuokrahinta ja kulut
Kuukausivuokrahinta: 6,9 €/m²/kk + alv
Sähkö- ja vesimaksu: Vuokralainen vastaa kuluista
Lämmitys: Vuokralainen vastaa kuluista
Jäte: Vuokralainen vastaa kuluista ja järjestelyistä
Auraus: Vuokralainen vastaa kuluista ja järjestelyistä
Muuta: 3kk vuokraa vastaava summa, 12 kk minimisopimusaika ja luottotietojen on oltava kunnossa

Kohteen ominaisuudet
-
Asfaltoitu piha
-
Ilmalämpöpumppu
-
Keittiö
-
Lattiakaivo
-
Nosto-ovi
-
Parkkipaikat
-
Parvi
-
Suihku
-
Toimistotila
-
Vesipiste
-
Voimavirta
-
WC
