
Hyvä liiketila/myymälä Keskusta Porvoo
14,9 €/m²/kk + alv | 840 m² | Lundinkatu 8, Porvoo

Kohdetta välittää
KTM, LKV Antti Soivio
- 0400 446553
- [javascript protected email address]

Vuokrataan iso liiketila/myymälä Porvoon keskustassa!
Porvoon keskustassa Nimbus-talon toisesta kerroksesta vuokrattavana iso liiketila/myymälä. Tunnettu Nimbus-talo on osa uudempaa Porvoon kaupunkikehitystä, jossa vanhan kaupungin rinnalle on rakennettu modernimpia palvelukeskittymiä.
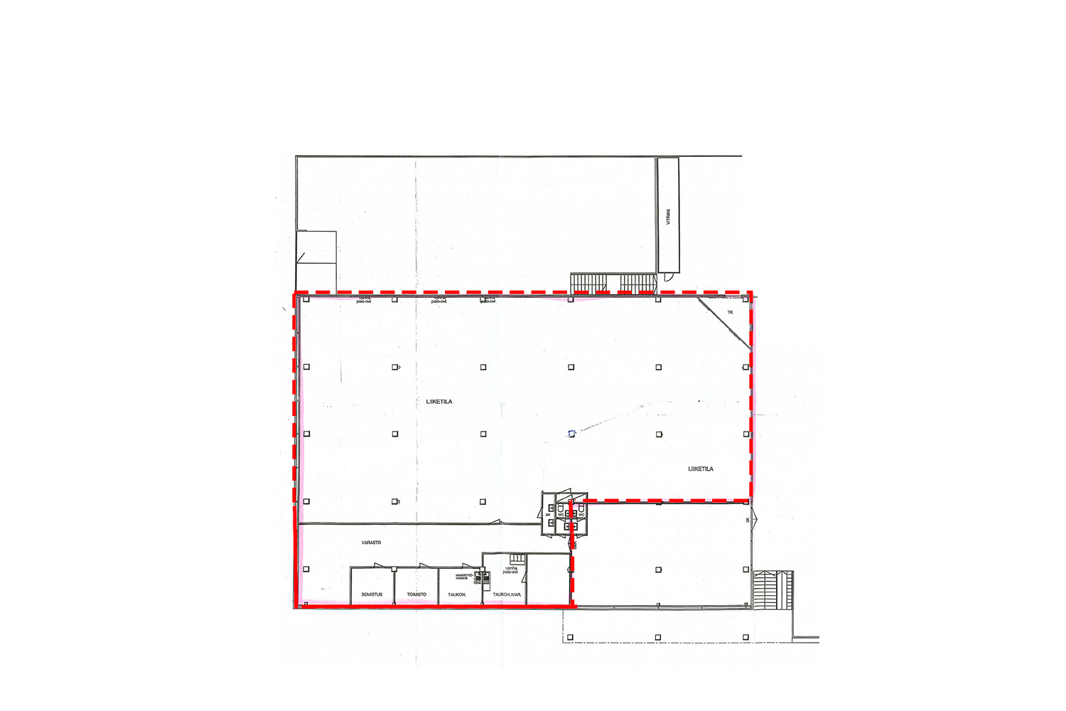
Tilaan on esteetön kulku ja se on pinta-alaltaan 840 m². Myymälä on pääosin avointa tilaa, siellä on siistit vaaleat pinnat, isot näyteikkunat Citymarketin kauppakujan suuntaan ja hyvä valaistus. Myymälän takaosassa on iso varasto, jonka yhteydessä on keittiö/taukotila ja wc. Tilaan oma sisäänkäynti Piispankadun puolelta, Citymarketin kauppakujalta.
Tilassa ei ole ravintolavalmiutta eikä sitä voi vuokrata ravintolaksi tai kahvilaksi ilman mittavia muutostöitä (vuokralaisen lukuun).
Rakennuksessa tehty paljon saneeraustöitä ja se on peruskorjattu vuosien 2022–2024 välillä.
Maksullisia autopaikkoja kadunvarressa ja lähialueen parkkihallista mahdollisuus tiedustella lisää vuokrattavia parkkipaikkoja.
Keskeisen sijainnin lisäksi tila on lähellä julkista liikennettä ja Porvoon toria. Kaikki Porvoon keskustan kaupanpalvelut ja lounasmahdollisuudet ovat aivan nurkan takana.
Hieno liiketila erinomaisella paikalla lähellä Lundin ostoskeskusta Porvoon torin kupeessa!
Kohdetiedot
Sijainti
Katuosoite: Lundinkatu 8, 06100 Porvoo
Kaupunginosa: Keskusta
Ympäristö: Kaupungin keskusta, liikerakennuksia, asuinrakennuksia, kaikki keskustan palvelut vieressä
Rakennus/huoneisto
Pinta-alat: 840 m²
Kiinteistötyyppi: Liikerakennus
Huoneistoselitelmä: Liikehuoneisto/myymälätila
Kerros: 2
Kunto, varusteet ja palvelut: Pääosin avointa myymälätilaa, varstotilaa, keittiö ja wc
Rakennusvuosi: 1981
Energiatodistus: Ei lain edellyttämää todistusta
Lämmitys: Kaukolämpö
Vapautuu: 1.11.2026
Vuokrahinta ja kulut
Kuukausivuokra: 14,9 €/m²/kk + alv
Vesi- ja sähkömaksu: Mittauksen mukaan (oma sähkösopimus sähkölle)
Lämmitys: Sisältyy vuokraan
Muut ehdot: Minimisopimuskausi 12 kk, vakuus 3 kk vuokraa vastaava summa ja luottotietojen on oltava kunnossa

Kohteen ominaisuudet
-
Asfaltoitu piha
-
Keittiö
-
Toimistotila
-
Vesipiste
-
WC
