
Elintarvike- ja varastotila Kulloo Porvoo
2'500 €/kk + alv | 300 m² + 100 m² (ullakko) | Kulloon kartanon tie 145, Porvoo

Kohdetta välittää
KTM, LKV Antti Soivio
- 0400 446553
- [javascript protected email address]

Vuokrataan elintarvike- ja varastotila Kulloonkylässä!
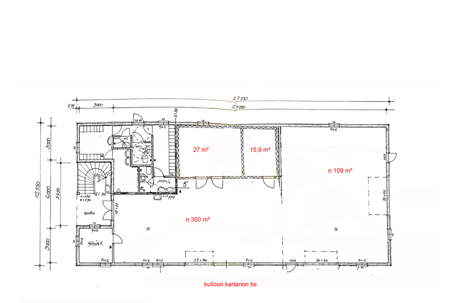
Kulloon kartanon etupihalla, idyllisessä maalaisympäristössä vuokrattavana erinomainen elintarvike – ja varastotila moneen käyttöön. Tilassa on aikaisemmin toiminut mm. pieni limonaditehdas ja sitä ennen elintarvikkeiden tuotanto- ja varastointitila.
Rakennus on pääasiassa avointa tuotantotilaa ja toisessa päädyssä on valmiina wc- ja keittiötilat sekä toimistohuone. Pinta-alaltaan tilat ovat yhteensä 300 m². Mahdollisuus ajaa autolla sisään, kolme erillistä nosto-ovea. Tuotantotilassa kaksi kylmiötä, useita lattiakaivoja ja vesipisteitä ja ne ovat elintarviketuotantoon hyväksytyt tilat. Tuotantotilan vapaa korkeus on noin 3,3 metriä. Rakennuksen päädyssä on iso avoin varastotila pinta-alaltaan noin 109 m² ja sen vapaa korkeus 5,1 metriä. Nosto-ovien tarkemmat mitat ovat L2,4 m x K2,9 m ja isomman oven mitat ovat L3,5 m x K4,0 m
Piha-alue on reilunkokoinen ja ympäristö mahdollistaa erilaisia esittelytilaisuuksia Kulloon kartanon idyllisessä ympäristössä.
Rakennuksen yläkerrasta voidaan vuokrata ullakko, joka on pinta-alaltaan 100 m² lisätilaa esimerkiksi varastotilaksi. Ullakon tila voisi soveltua myös näyttely-, edustus-, toimisto- ja kokoustiloiksi, mutta vaatii lämmityksen asennuksen tilaan (nyt vain kylmä mutta kuiva tila).
Rakennuksen tiloja voidaan räätälöidä uudelle vuokralaiselle erikseen sovitusti.
Loistava tuotanto-, varasto-, ja elintarviketila nyt vuokrattavana!
Kohdetiedot
Sijainti
Katuosoite: Kulloon kartanontie 145, 06830 Porvoo
Kaupunginosa: Kulloo
Ympäristö: Kartanon piha-alue
Rakennus
Pinta-alat: 300 m²
Rakennustyyppi: Teollisuus - ja pienteollisuustalot
Rakennusvuosi: 2001
Huoneistoselitelmä: Elintarvike- ja varastotila
Kerros: Katutaso + ullakko
Kunto, varusteet ja palvelut: Hyvä kunto, nosto-ovia, lattiakaivo, kylmiötä 2 kpl, vesipiste, wc, voimavirtapistokkeita, toimistotila, lisävarastotila ullakolta
Energiatodistus: Ei lain edellyttämää todistusta
Vapautuu: Heti vapaa
Pysäköinti: Pihalla
Vuokrahinta ja kulut
Kuukausivuokra: 2'500 €/kk + alv
Vesimaksu: Mittauksen mukaan
Sähkö: Mittauksen mukaan
Lämmitys: Vuokralainen maksaa (maalämpö)
Autopaikkamaksu: Ei ole
Muuta: 3kk vuokraa vastaava summa ja luottotiedot oltava kunnossa. Minimi sopimuskausi 12kk

Kohteen ominaisuudet
-
Keittiö
-
Lattiakaivo
-
Nosto-ovi
-
Parkkipaikat
-
Suihku
-
Toimistotila
-
Vesipiste
-
WC
